EasyManua.ls Logo

Burnham FREEDOM - Page 29

Burnham FREEDOM
88 pages
Print Icon
To Next Page IconTo Next Page
To Next Page IconTo Next Page
To Previous Page IconTo Previous Page
To Previous Page IconTo Previous Page
Loading...
29
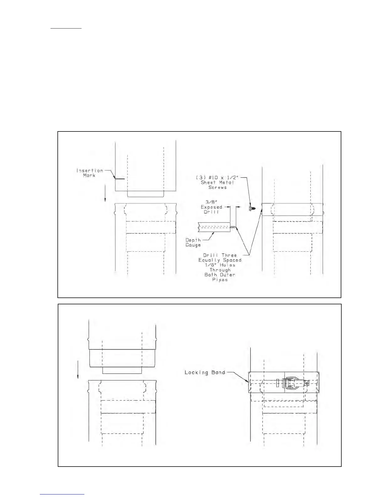
3) JoiningPipe-
a) Startassemblyoftheventsystemattheboiler.Lubricatethebrowngasketintheboilerventcollarwithafewdropsof
water.
b)Pushthemaleendoftherstttingintotheboilercollaruntilitbottomsout.Themaleendofcuttablesectionsshould
go1”intothecollaruntiltheinsertionmark(madeinStep2dabove)iscovered.Onotherttings,thebeadonthe
malepipewillbebottomoutonthecollar(Figure7.32b).
c)Themaleendofcuttablettingsmustbeheldtothecollarwiththree#10x1/2”sheetmetalscrews.Drilla1/8hole
throughbothouterpipestostartthisscrew.Use a drill stop or other means to ensure that the drill bit does not
penetrate more than 3/8” into the outer pipe. Do not use a sheet metal screw longer than 1/2” (Figure7.32a).
d)Uselockingbands(providedwithallttings)tosecurenon-cuttablepipe,aswellasttings,totheboilercollar
(Figure7.32b).
e) Usethesamemethodtojoinallremainingventcomponentsexceptfortheterminal.
Figure 7.32a: Joining Cuttable Pipe
Figure 7.32b: Joining Non-Cuttable Pipe

Other manuals for Burnham FREEDOM

Related product manuals