EasyManua.ls Logo

Burnham K2WTC - Page 27

Burnham K2WTC
160 pages
Print Icon
To Next Page IconTo Next Page
To Next Page IconTo Next Page
To Previous Page IconTo Previous Page
To Previous Page IconTo Previous Page
Loading...
27
107774-01- 9/17
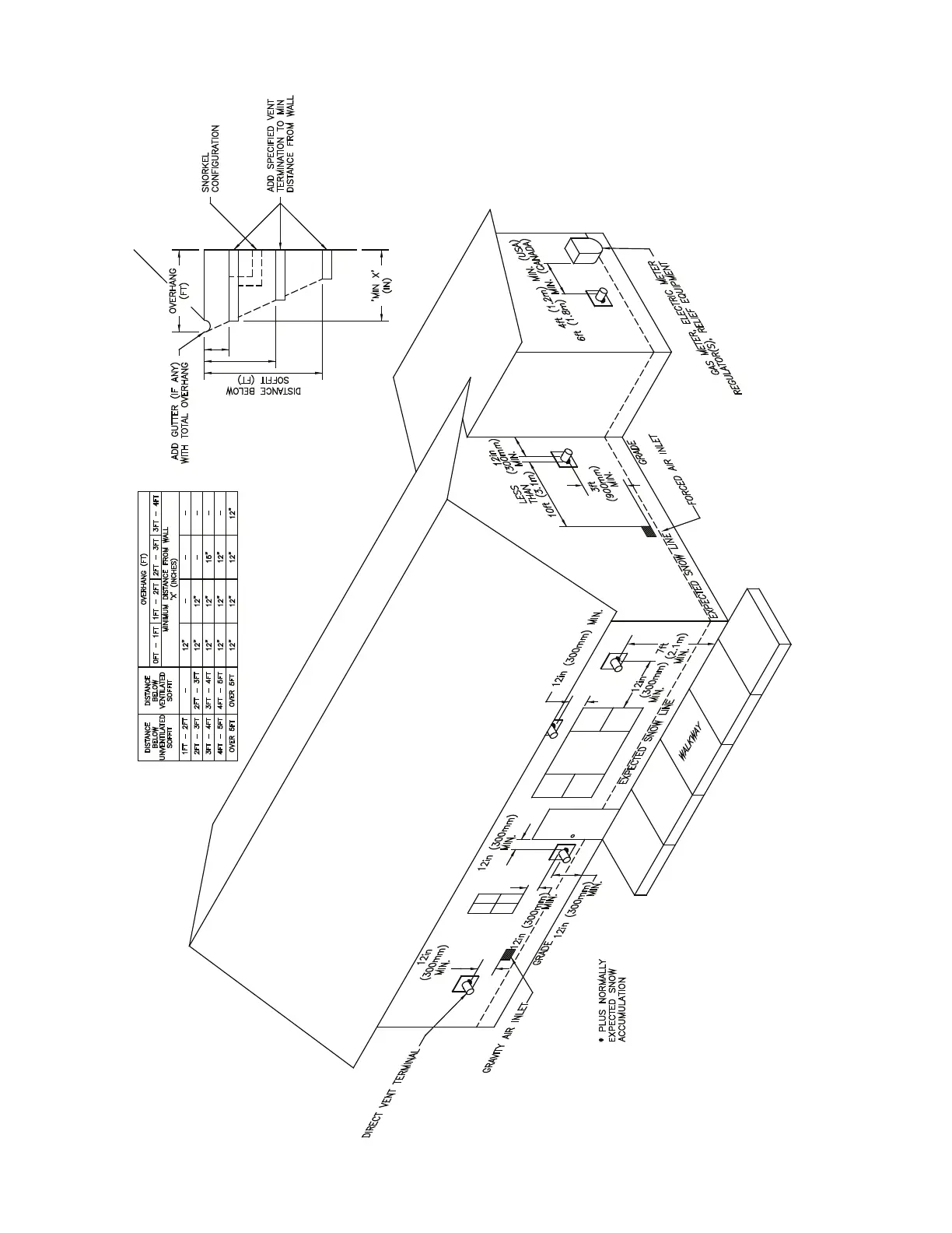
VII. Venting B. Design Requirements Unique to Horizontal Twin Pipe Venting Systems (continued)
Note: Air intake termination not shown.
Figure 7.11: Location of Vent Terminal Relative to Windows, Doors, Grades, Overhangs, Meters and Forced Air Inlets - Two-Pipe System Vent
Terminal (Shown) Two-Pipe System Air Intake Terminal (Not Shown)

Related product manuals