EasyManua.ls Logo

Burnham K2WTC - Product Description; Specifications

Burnham K2WTC
160 pages
Print Icon
To Next Page IconTo Next Page
To Next Page IconTo Next Page
To Previous Page IconTo Previous Page
To Previous Page IconTo Previous Page
Loading...
7
107774-01- 9/17
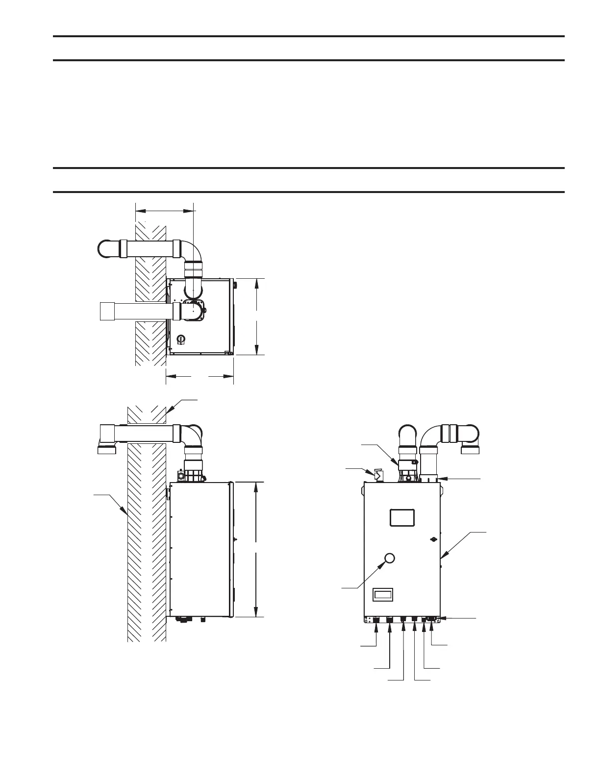
II. Specications
Figure 2.1: General Conguration
Thisboilerisastainlesssteelgasredcondensingboilerdesignedforuseinforcedhotwaterheatingsystemsrequiring
supply water temperatures of 180°F or less. In addition to providing water for space heat, this boiler also generates domestic
hot water (DHW). This boiler may be vented vertically or horizontally with combustion air supplied from outdoors. It is
notdesignedforuseingravityhotwatersystemsorsystemscontainingsignicantamountsofdissolvedoxygen.
I. Product Description
"A"
SEE TABLE 2.4
INSIDE
OF WALL
OUTSIDE
OF WALL
30
ACCESS
CONNECTION
DOOR
RELIEF
CONDENSATE TRAP
CLEANOUT
(INSIDE CABINET)
PRESSURE GAUGE
AIR INTAKE
CONNECTION
CONNECTION
CONDENSATE
VALVE
BOILER RETURN WATER
CONNECTION
VENT
TEMPERATURE/
BOILER SUPPLY WATER
CONNECTION
DOMESTIC HOT WATER OUTLET DOMESTIC COLD WATER INLET
GAS CONNECTION
17

Related product manuals