EasyManua.ls Logo

buster LX - Page 161

buster LX
Print Icon
To Next Page IconTo Next Page
To Next Page IconTo Next Page
To Previous Page IconTo Previous Page
To Previous Page IconTo Previous Page
Loading...
Fiskars Boats, Inha Works Ltd 2010
28 (31)
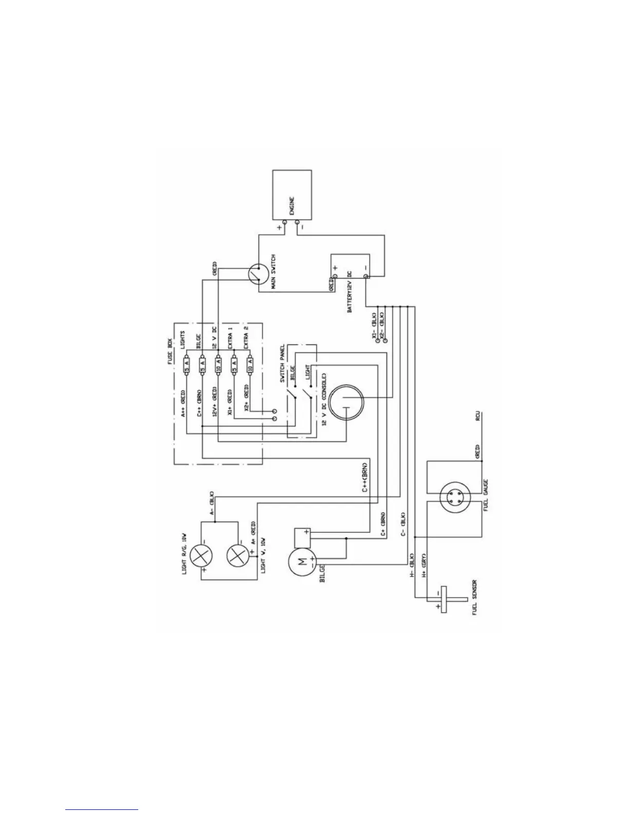
APPENDIX 3: CIRCUIT DIAGRAMS FOR ELECTRICAL SYSTEM
Circuit diagram for Buster Lx. Symbols and terminology on page --.

Table of Contents

Other manuals for buster LX

Related product manuals