EasyManua.ls Logo

Calorex Pro-Pac 45 - Page 101

Calorex Pro-Pac 45
156 pages
Print Icon
To Next Page IconTo Next Page
To Next Page IconTo Next Page
To Previous Page IconTo Previous Page
To Previous Page IconTo Previous Page
Loading...
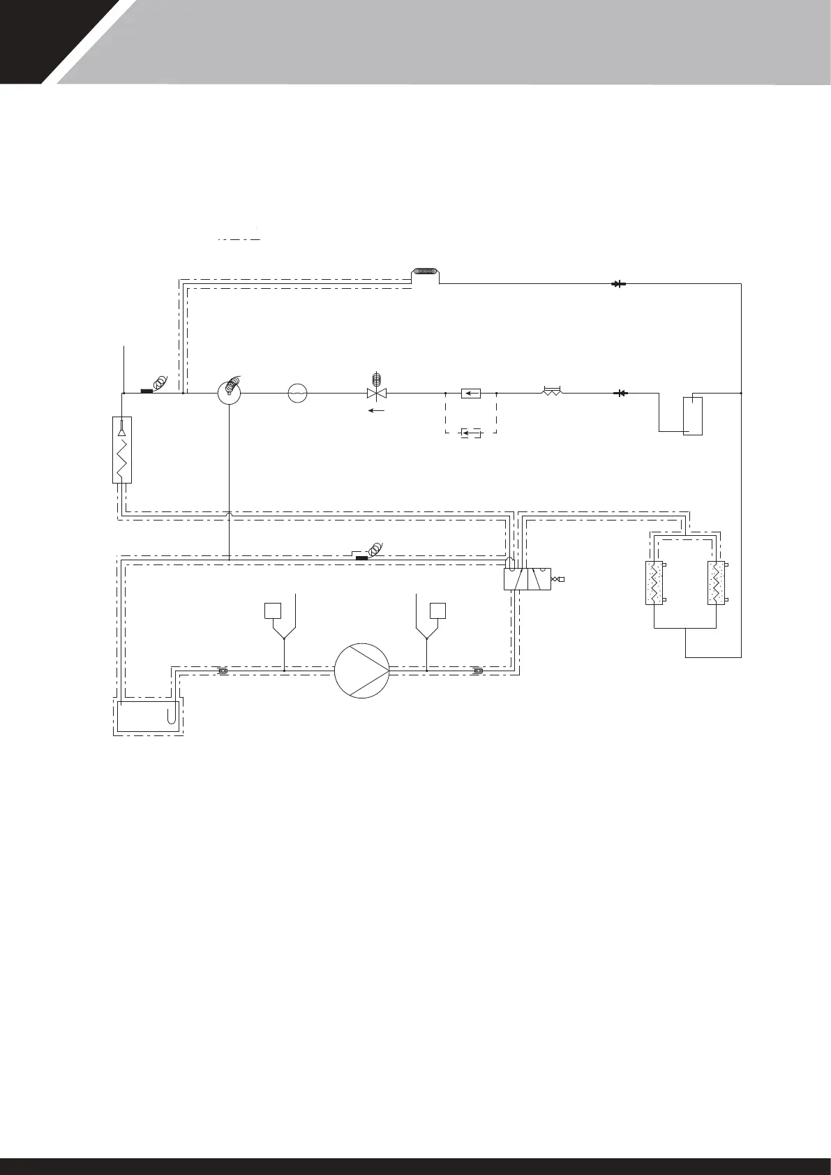
CONDENSEURS
HP
EVAPORATEUR
POINT
D’INJECTION
DU GAZ
DETENDEUR
THERMOSTATIQUE
INDICATEUR
DE LIQUIDE
ELECTROVANNE
FILTRE
DESHYDRATEUR
(70/140)
RESERVOIR
ACCUMULATEUR
D’ASPIRATION
COMPRESSEUR
(7/8)
(1 3/8)
SONDE
DEGIVRAGE
CAPILLAIRE
BULBE
THERMOSTATIQUE
VALVE
ANTI-RETOUR
RECHAUFFEUR,
BAC RECEPTEUR
BOBINE
VANNE D’INVERSION
ISOLATION
VALVE A HAUT
PRESSION
VALVE
ANTI-RETOUR
VALVE A BASSE
PRESSION
PRESSOSTAT
BASSE
PRESSION
PRESSOSTAT
HAUT
PRESSION
LP
ELIMINATEUR
DE VIBRATION
ELIMINATEUR
DE VIBRATION
PROPAC MY CIRCUIT FRIGORIFIQUE
NOTE: LES PROPAC 90/140MY UTILISENT 2 CIRCUITS FRIGORIFIQUES
FILTRE
DESHYDRATEUR
49
SD566252 ISSUE 51

Table of Contents

Other manuals for Calorex Pro-Pac 45

Related product manuals