EasyManua.ls Logo

Calorex Pro-Pac 45 - Plans Dinstallation

Calorex Pro-Pac 45
156 pages
Print Icon
To Next Page IconTo Next Page
To Next Page IconTo Next Page
To Previous Page IconTo Previous Page
To Previous Page IconTo Previous Page
Loading...
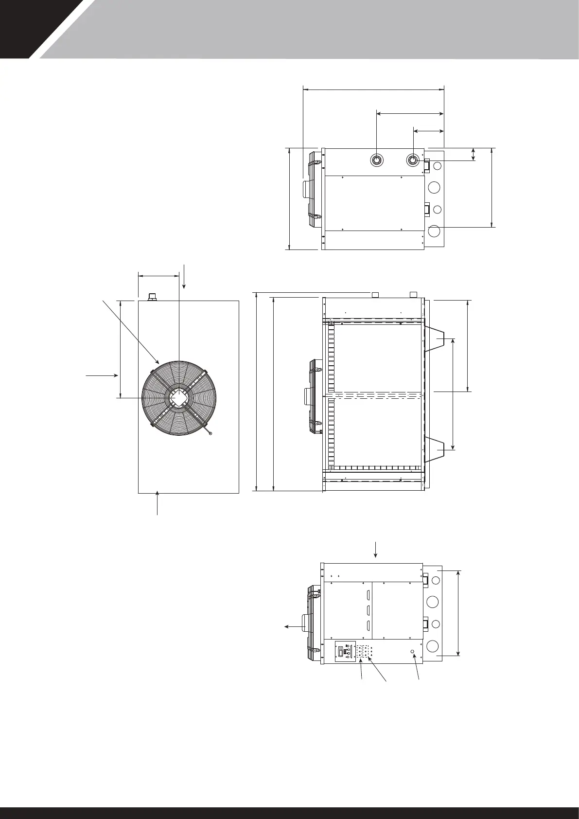
PLANS D’INSTALLATION
1486
1555
EEE
C
D
D
E
SORTIE
D'EAU
ENTREE
D'EAU
PROPAC 30M/MY
DIMENSIONS EN mm
EDITION 1
LAISSER 500mm D'ESPACE POUR ACCEDER AUX
PANNEAUX DE SERVICE
CONNEXIONS D'EAU 1.5" BSPM
CONDENSAT 1.5"
DIAMETRE DU
VENTILATEUR 500
PANNEAU
DE SERVICE
PANNEAU
DE SERVICE
PANNEAU DE
SERVICE
316
752
713
CONDENSAT SORTANT
DE LA BASE
PANNEAU
DE
SERVICE
235
502
1080
790
609
CONDENSAT SORTANT DE
LA BASE
80
*880
CONSOLE
BOUTON
REARMEMENT BP
"AUTO RESET SUR
MODELES "Y")
ENTREE
D'AIR
ALIMENTATION
SORTIE D' AIR
PANNEAU
DE
SERVICE
PANNEAU
ELECTRIQUE
DE SERVICE
IO
BOUTON
REARMEMENT HP
*683
*POINTS DE RACCORDEMENT
POUR FIXER LA MACHINE AU SOL
37
SD566252 ISSUE 51

Table of Contents

Other manuals for Calorex Pro-Pac 45

Related product manuals