EasyManua.ls Logo

Calorex Pro-Pac 45 - Page 90

Calorex Pro-Pac 45
156 pages
Print Icon
To Next Page IconTo Next Page
To Next Page IconTo Next Page
To Previous Page IconTo Previous Page
To Previous Page IconTo Previous Page
Loading...
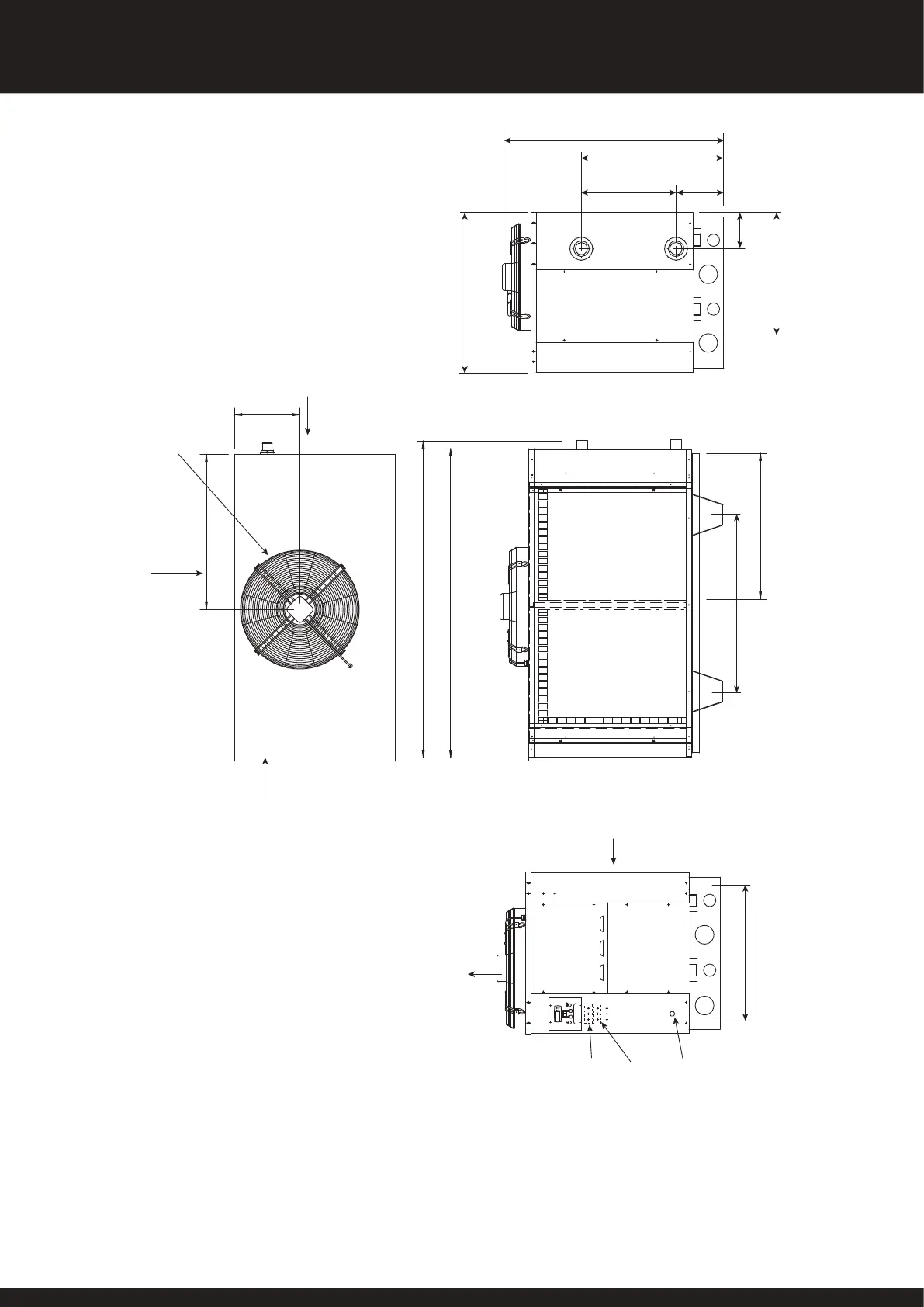
1486
1555
EEE
C
D
D
E
SORTIE
D'EAU
ENTREE
D'EAU
PROPAC PPT30M/MY
DIMENSIONS EN mm
EDITION 1
LAISSER 500mm D'ESPACE POUR ACCEDER AUX
PANNEAUX DE SERVICE
CONNEXIONS D'EAU 2" UNION
CONDENSAT 1.5"
DIAMETRE DU
VENTILATEUR 500
PANNEAU
DE SERVICE
PANNEAU
DE SERVICE
PANNEAU DE
SERVICE
316
752
713
CONDENSAT SORTANT
DE LA BASE
*880
CONSOLE
BOUTON
REARMEMENT BP
(AUTO RESET SUR
MODELES "Y")
ENTREE
D'AIR
ALIMENTATION
SORTIE D' AIR
PANNEAU
DE
SERVICE
PANNEAU
ELECTRIQUE
DE SERVICE
IO
BOUTON
REARMEMENT HP
*683
*POINTS DE RACCORDEMENT POUR
FIXER LA MACHINE AU SOL
1080
PANNEAU
DE
SERVICE
790
232
692
460
176
617
POSITION OF CONDENSATE
DRAIN IN BASE OF MACHINE
38
SD566252 ISSUE 51
SYSTEME PRO-PAC MANUEL D’INSTALLATION

Table of Contents

Other manuals for Calorex Pro-Pac 45

Related product manuals