EasyManua.ls Logo

Calorex Pro-Pac 45 - Page 142

Calorex Pro-Pac 45
156 pages
Print Icon
To Next Page IconTo Next Page
To Next Page IconTo Next Page
To Previous Page IconTo Previous Page
To Previous Page IconTo Previous Page
Loading...
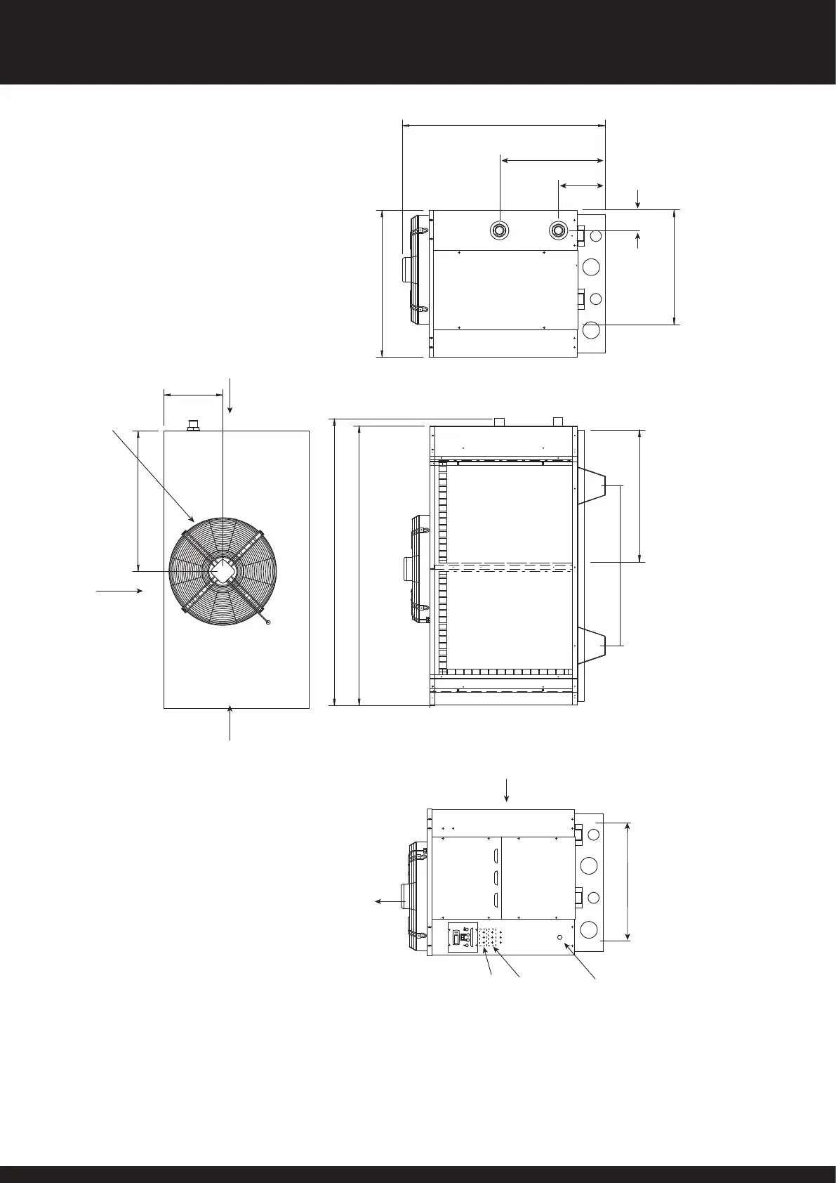
PROPAC 30M/MY
DIMENSIONES EN mm
ISSUE 1
PERMITIR 500mm PARA ACCEDER A LOS PANELES
DE SERVICO
CONEXIONES DE AGUA 1.5" BSPM
CONDENSADO 1.5"
1486
1555
EEE
C
D
D
E
SALIDA
DE AGUA
ENTRADA
DE AGUA
VENTILADOR NOMINAL
DIAMETRO 560
PANEL DE
SERVICIO
PANEL DE
SERVICIO
PANEL DE
SERVICIO
CONSOLA
INTERRUPTOR
AP
INTERRUPTOR BP
(SE REINICIA
AUTOMATICAMENTE
EN UNIDADES Y)
ENTRADA DE
RED
316
752
PANEL DE
SERVICIO
PANEL DE
SERVICIO
CAJA
ELECTRICA
IO
713
CONDENSADO
FUERA DE LA BASE
235
502
1080
790
609
CONDENSADO
FUERA DE LA BASE
80
ENTRADA DE
AIRE
SALIDA DE AIRE
PANEL DE
SERVICIO
*FIJAR LOS CENTROS PARA ASEGURAR LA MAQUINA
*683
*880
38
SD566252 ISSUE 51
PR0-PAC SYSTEM MANUAL DE INSTALACIÓN

Table of Contents

Other manuals for Calorex Pro-Pac 45

Related product manuals