EasyManua.ls Logo

Calorex Pro-Pac 45 - Page 50

Calorex Pro-Pac 45
156 pages
Print Icon
To Next Page IconTo Next Page
To Next Page IconTo Next Page
To Previous Page IconTo Previous Page
To Previous Page IconTo Previous Page
Loading...
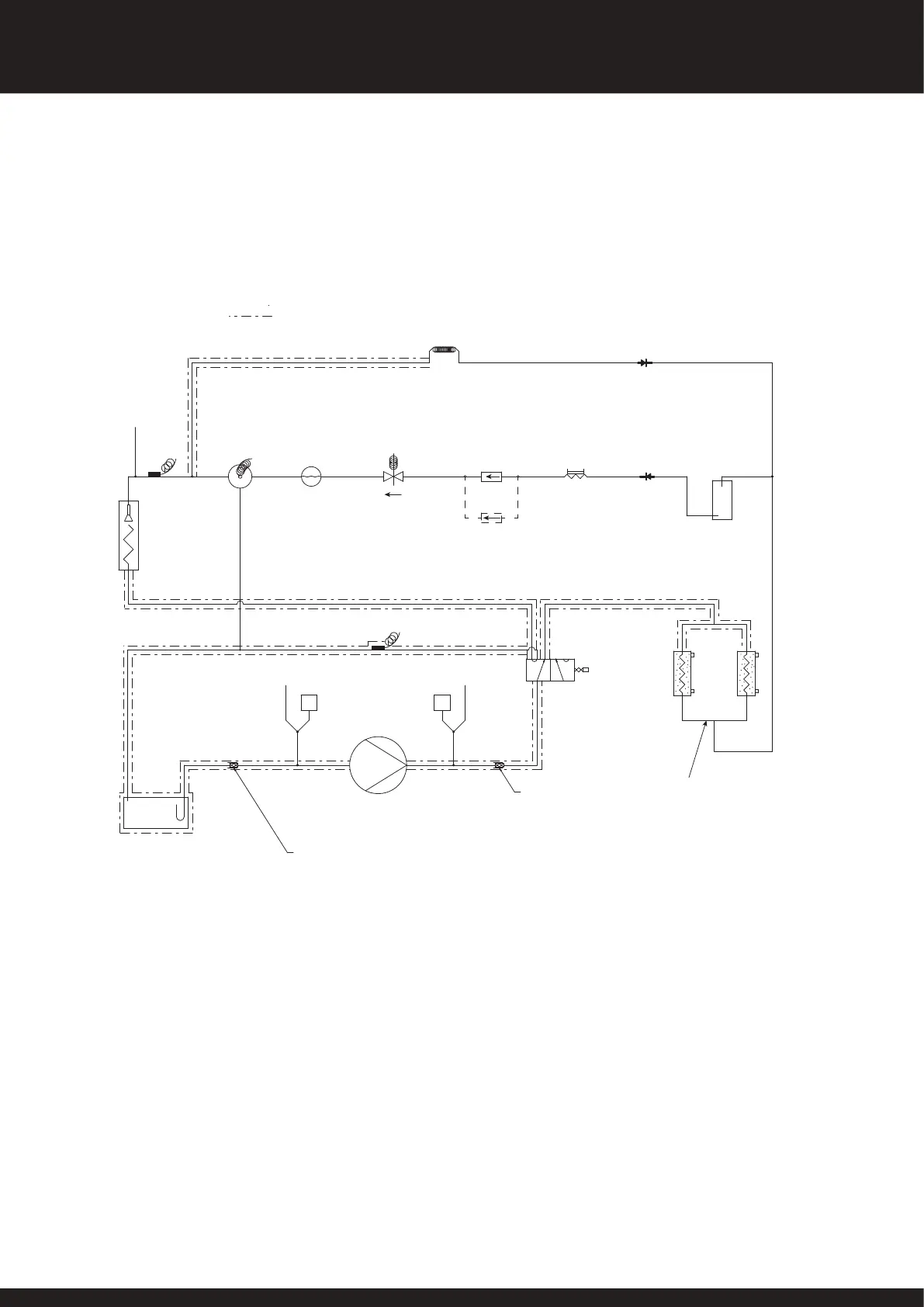
WATER
CONDENSERS
NOTE CONDENSER
REFRIGERANT CIRCUITS
TO BE JOINED IN PARALLEL
LP HP
EVAPORATOR
PROCESS
PORT
TEV
LIQUID
INDICATOR
SOLENOID
VALVE
DRIER
DRIER
70/140
RECEIVER
SUCTION
ACCUMULATOR
LP SERVICE
SCHRADER
COMPRESSOR
VIBRATION
ELIMINATOR
(7/8)
VIBRATION
ELIMINATOR
(1 3/8)
DEFROST
PROBE
CAPILLARY
TEV PHIAL
NRV
DRIP TRAY
HEATER
NRV
COIL
REVERSING
VALVE
DENOTES INSULATION
HP SERVICE
SCHRADER
PROPAC MY FRIDGE CIRCUIT
NOTE PROPAC 90/140 USES 2 FRIDGE CIRCUITS.
50
SD566252 ISSUE 51
PR0-PAC SYSTEM OWNER INSTALLATION MANUAL

Table of Contents

Other manuals for Calorex Pro-Pac 45

Related product manuals