EasyManua.ls Logo

CAME BXL04AGS - Page 87

CAME BXL04AGS
96 pages
Go to English
To Next Page IconTo Next Page
To Next Page IconTo Next Page
To Previous Page IconTo Previous Page
To Previous Page IconTo Previous Page
Loading...
1
2
3
4
5
16
14
15
11
12
6
9
10
7
8
13
17
18
Стр. 15 - Инструкция FA00000-RU - 02/2018 - © CAME S.p.A. - «Перевод оригинальных инструкций»
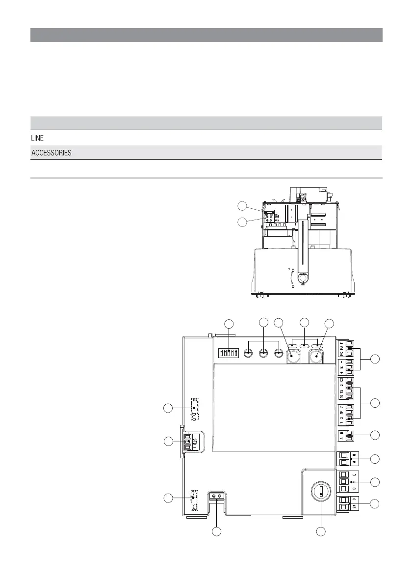
ОСНОВНЫЕ КОМПОНЕНТЫ
1. DIP-переключатели
2. Регулировки
3. Кнопка программирования
4. Светодиодный индикатор
5. Кнопка управления (7)
6. Контакты подключения энкодера и концевых
выключателей
7. Контакты подключения устройств управления и
безопасности
8. Контакты подключения кодонаборной клавиатуры
9. Контакты подключения мотор-редуктора
10. Контакты электропитания аксессуаров
11. Контакты электропитания электронной платы
управления
12. Предохранитель аксессуаров /
электронной платы
13. Контакты подключения антенны
14. Разъем для платы
радиоприемника AF
15. Контакты подключения модуля
Green Рower
16. Разъем для платы R800
17. Контакты электропитания
18. Входной предохранитель
ЭЛЕКТРИЧЕСКИЕ ПОДКЛЮЧЕНИЯ И ПРОГРАММИРОВАНИЕ
Внимание! Перед началом работ по эксплуатации, ремонту, настройке и регулировке блока
управления отключите сетевое электропитание или вытащите аккумуляторы.
Напряжение электропитания платы и устройств управления: ~/=24В.
⚠
Внимание! Суммарная мощность аксессуаров, подключенных к контактам 10-11, не должна
превышать 20Вт.
Для настройки функций используются DIP-переключатели и регулировки.
Все подключения защищены плавкими предохранителями.
Плавкие предохранители
ZN6
- Входной 1,6 A
- Аксессуары 2 A

Other manuals for CAME BXL04AGS

Related product manuals