EasyManua.ls Logo

CAME BXL04AGS - Page 89

CAME BXL04AGS
96 pages
Go to English
To Next Page IconTo Next Page
To Next Page IconTo Next Page
To Previous Page IconTo Previous Page
To Previous Page IconTo Previous Page
Loading...
A B 1 2 3P 7
10 TS
2
R800
OK
Стр. 17 - Инструкция FA00000-RU - 02/2018 - © CAME S.p.A. - «Перевод оригинальных инструкций»
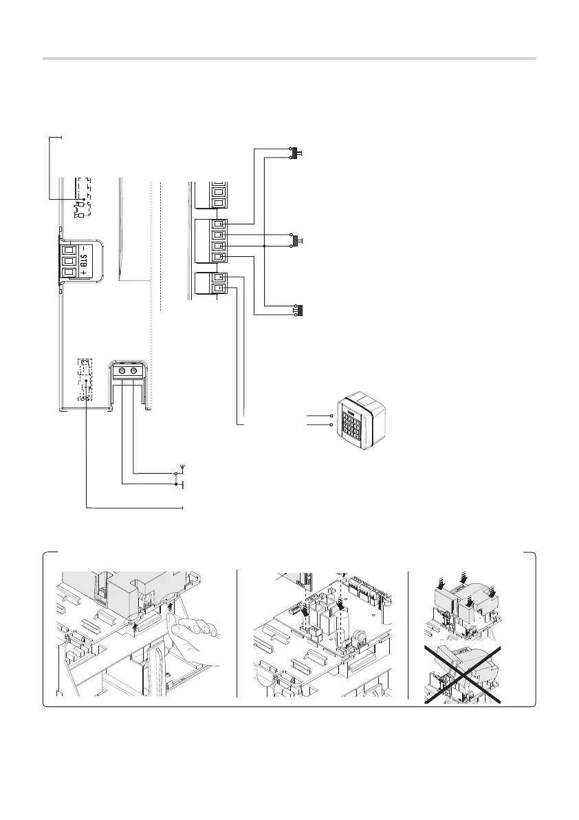
Чтобы вставить платы в соответствующие разъемы, снимите крышку платы управления.
Синий
Белый
Разъем под плату R800
(плата R800 необходима для
использования кодонаборной
клавиатуры)
Функция «ОТКРЫТЬ-ЗАКРЫТЬ-ИЗМЕНИТЬ НА-
ПРАВЛЕНИЕ» (пошаговый режим) с помощью
устройства управления (нормально-разом-
кнутые контакты). В качестве альтернативы
при программировании функций можно
установить режим «ОТКРЫТЬ-СТОП-ЗА-
КРЫТЬ-СТОП».
Кнопка «СТОП» (нормально-замкнутые кон-
такты). Данная кнопка позволяет остановить
движение ворот с последующим исключением
цикла автоматического закрывания. Для воз-
обновления движения необходимо нажать со-
ответствующую кнопку управления или пульта
ДУ.
Если контакт не используется, отключите
его при программировании.
Разъем под плату радиоприемника AF (AF868 или AF43S) для
дистанционного управления
Функция «ЧАСТИЧНОЕ ОТКРЫВАНИЕ» с
помощью устройства управления (нормально-
разомкнутые контакты).
Антенна с кабелем RG58 для дистанционного управления
Кодонаборная клавиатура
УСТРОЙСТВА УПРАВЛЕНИЯ
ВНИМАНИЕ! Перед тем как установить любую плату (например: AF, R800), ОТКЛЮЧИТЕ
ЭЛЕКТРОПИТАНИЕ и отсоедините аккумуляторы при их наличии.

Other manuals for CAME BXL04AGS

Related product manuals