EasyManua.ls Logo

Camus Hydronics DMH-081 - Part 15 Electrical Diagrams; DM 80- 299 Internal Wiring Diagram

Camus Hydronics DMH-081
82 pages
Print Icon
To Next Page IconTo Next Page
To Next Page IconTo Next Page
To Previous Page IconTo Previous Page
To Previous Page IconTo Previous Page
Loading...
73
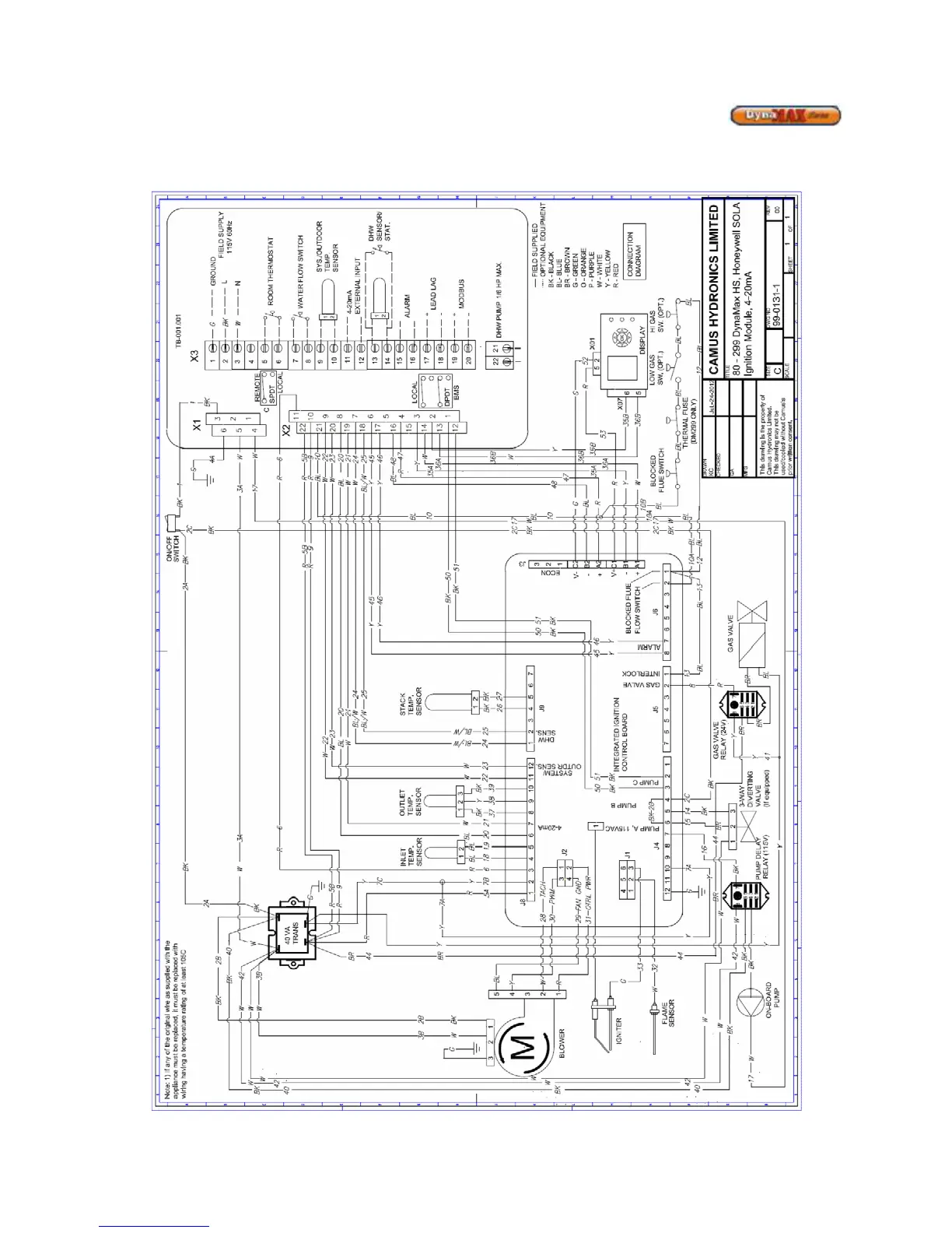
PART 15 ELECTRICAL DIAGRAMS
15.1 DM 80- 299 INTERNAL WIRING DIAGRAM

Table of Contents

Related product manuals