EasyManua.ls Logo

Candy OCGF12B - Page 230

Candy OCGF12B
247 pages
Print Icon
To Next Page IconTo Next Page
To Next Page IconTo Next Page
To Previous Page IconTo Previous Page
To Previous Page IconTo Previous Page
Loading...
230
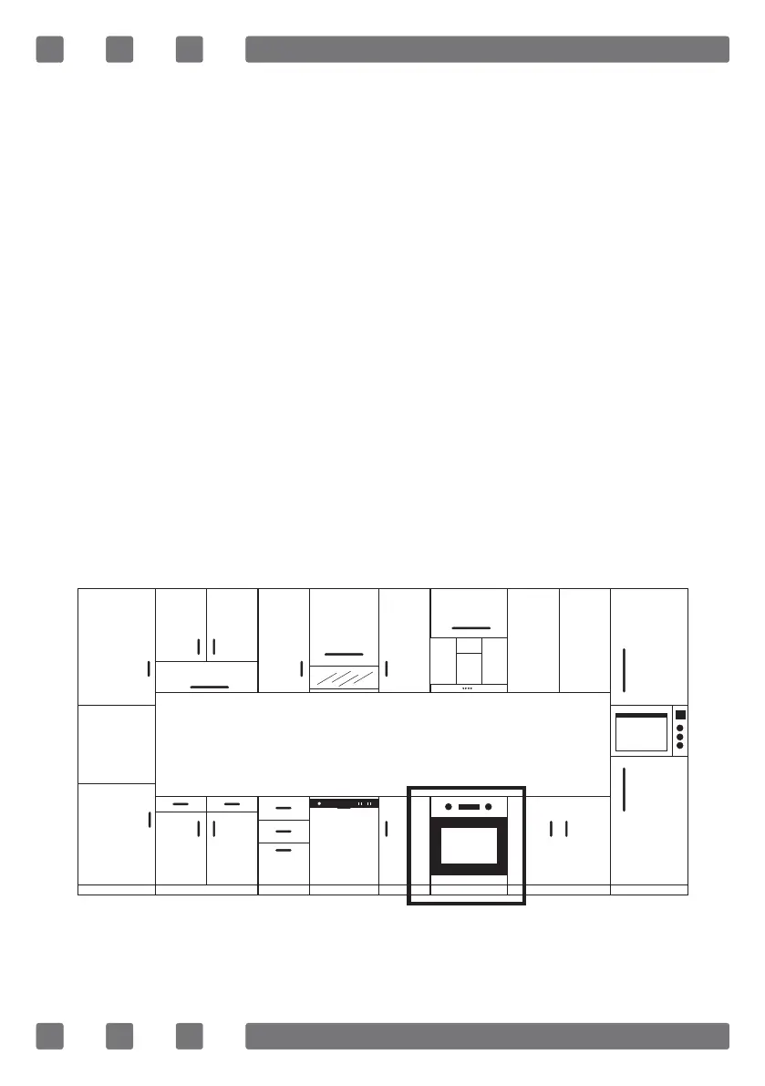
Umístění a zabezpečení trouby


-



-

-

Elektrické připojení



-



Montáž
CZ

Table of Contents

Related product manuals