EasyManua.ls Logo

CaptiveAire D76 - Roof Mount Installation

CaptiveAire D76
44 pages
Print Icon
To Next Page IconTo Next Page
To Next Page IconTo Next Page
To Previous Page IconTo Previous Page
To Previous Page IconTo Previous Page
Loading...
8
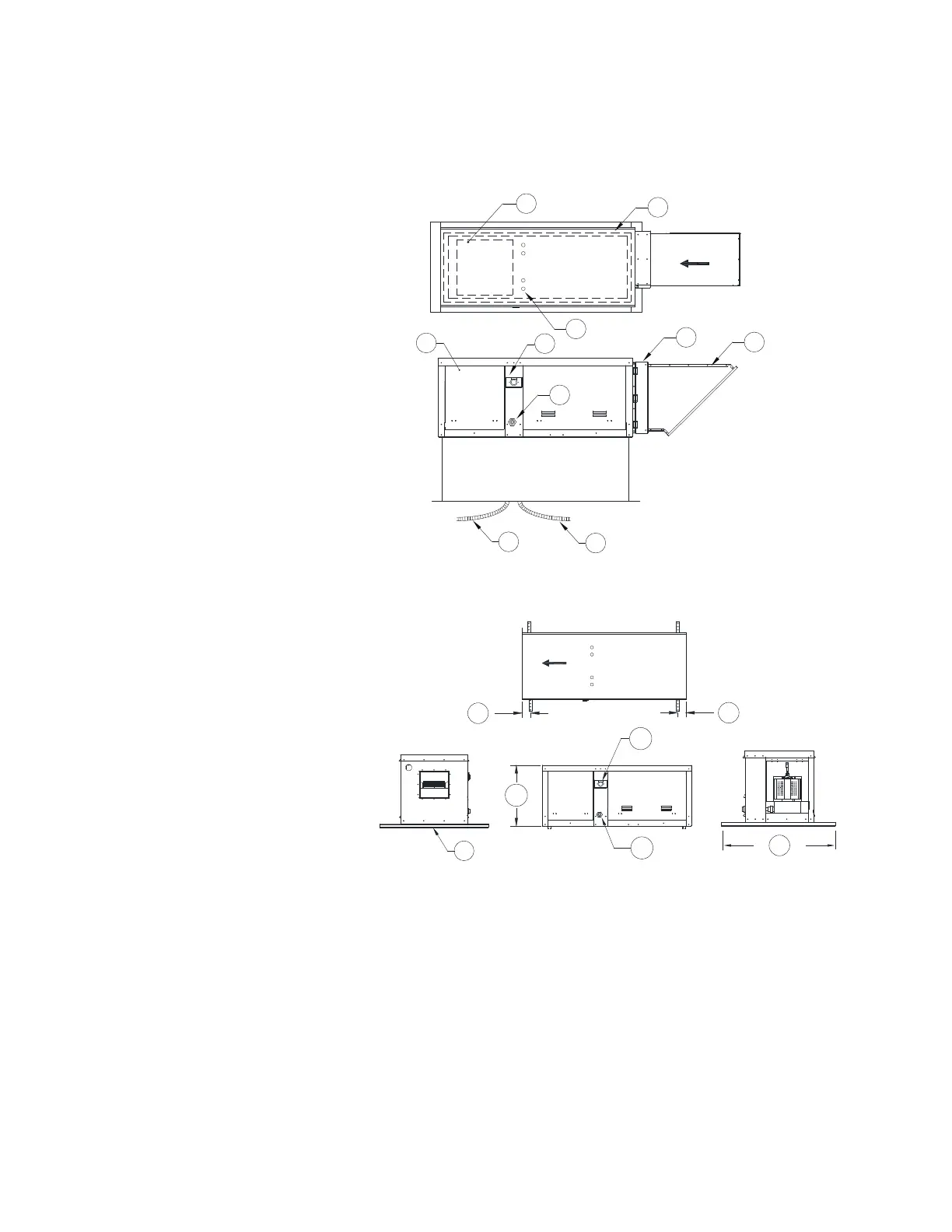
Roof Mount Installation
Note: Refer to submittal drawings for specific unit dimensions.
Figure 3 - Roof Mount Installation Details
Figure 4 - Indoor Inline
1
AIRFLOW
2
3
4
5
6
9
8
7
10
1. Discharge Opening
2. Curb Outer Wall
3. Flex Conduit for Field Wiring
4. Screened Intake
5. Filter Access Door
6. Service Disconnect Switch
7. 1/2” NPT Pipe
8. Blower/Motor Access Door
9. Control Drop
10. Motor Drop
1. Service Disconnect Switch
2. 1/2” NPT Pipe
3. Optional Unistrut Base for
Hanging
A. 1” Spacing from Unistrut to edge
of unit
B. 36” Unistrut
C. Unit Height
AIRFLOW
MOTOR
BLOWER/
DOOR
ACCESS
A
1
B
2
3
A
C