EasyManua.ls Logo

Carrier 38MGQ - Clearances 13; Clearances

Carrier 38MGQ
42 pages
To Next Page IconTo Next Page
To Next Page IconTo Next Page
To Previous Page IconTo Previous Page
To Previous Page IconTo Previous Page
Loading...
14
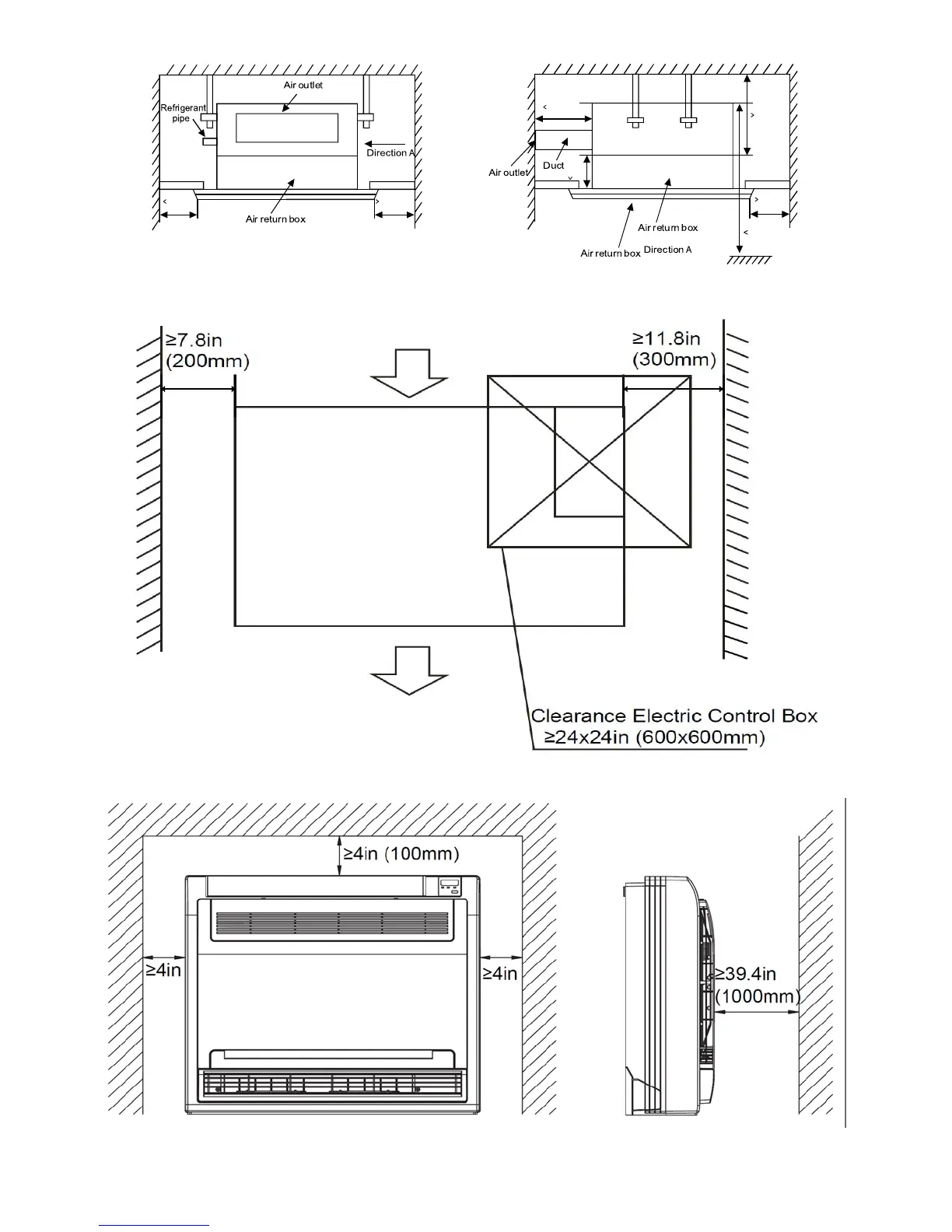
CLEARANCES -- INDOOR (CONTINUED)
19.7in
/500mm /100mm
3.9in
/1000mm
39.4in
/250mm
9.8in
/200mm
7.9in
/500mm
19.7in
/3m
9.8ft
Fig. 11 --- Ducted Clearance
Fig. 12 --- Ducted Clearance
Fig. 13 --- Floor Console Clearances

Related product manuals