EasyManua.ls Logo

Carrier 59MN7C - Safety Considerations

Carrier 59MN7C
72 pages
Print Icon
To Next Page IconTo Next Page
To Next Page IconTo Next Page
To Previous Page IconTo Previous Page
To Previous Page IconTo Previous Page
Loading...
59MN7C: Installation, Start-up, Operating and Service and Maintenance Instructions
Manufacturer reserves the right to change, at any time, specifications and designs without notice and without obligations.
3
I
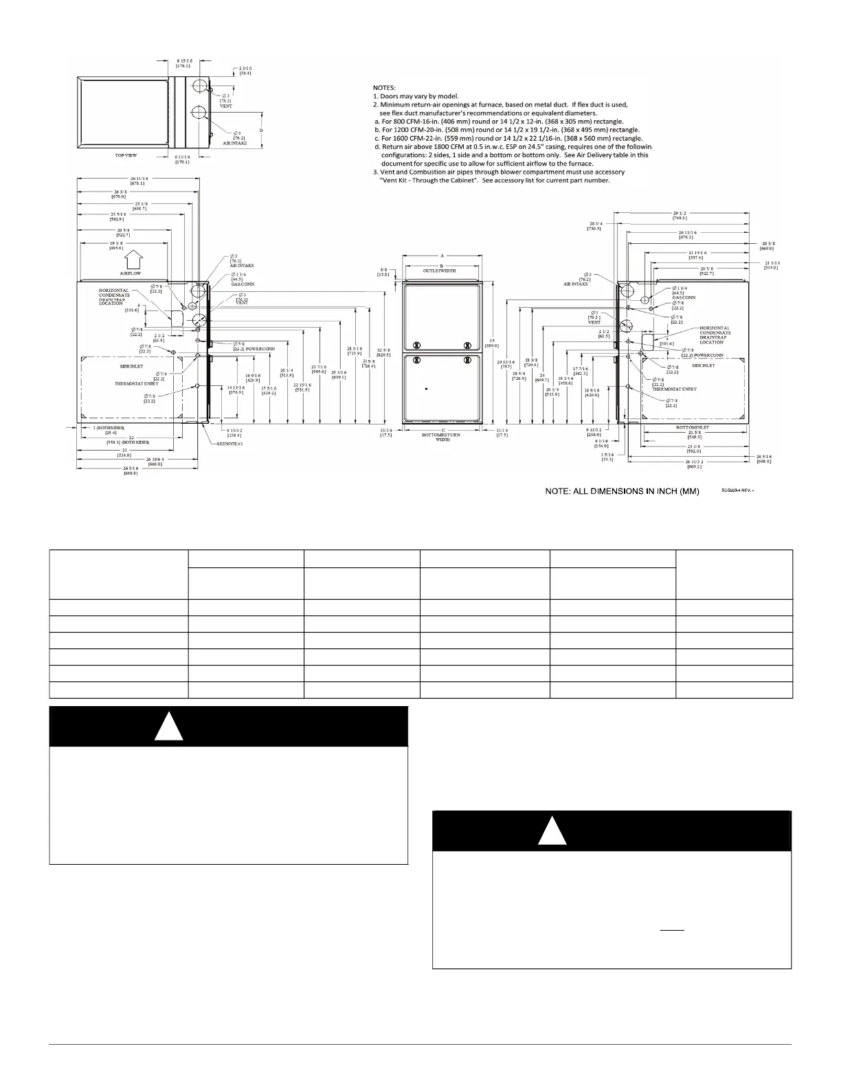
A210796
Fig. 1 – Dimensional Drawing
Most states in the USA and jurisdictions in Canada have laws that
require the use of Carbon Monoxide (CO) alarms with fuel burning
products. Examples of fuel burning products are furnaces, boilers, space
heaters, generators, water heaters, stoves/ranges, clothes dryers,
fireplaces, incinerators, automobiles, and other internal combustion
engines. Even if there are no laws in your jurisdiction requiring a CO
Alarm, it’s highly recommended that whenever any fuel burning product
is used in or around the home or business that the dwelling be equipped
with a CO Alarm(s). The Consumer Product Safety Commission
recommends the use of CO Alarm(s). The CO Alarm(s) must be
installed, operated, and maintained according to the CO Alarm
manufacturer’s instructions. For more information about Carbon
Monoxide, local laws, or to purchase a CO Alarm online, please visit the
following website. https://www.kidde.com.
SAFETY CONSIDERATIONS
Table 1 – Dimensions
FURNACE SIZE
A B C D
SHIP WT.
LB (KG)
CABINET WIDTH OUTLET WIDTH
BOTTOM
INLET WIDTH
AIR INTAKE
060C17--14 17-1/2 (445) 15-7/8 (403) 16 (406) 8-3/4 (222) 144 (65.3)
060C21--20 21 (533) 19-3/8 (492) 19-1/2 (495) 10-1/2 (267) 160 (72.3)
080C17--14 17-1/2 (445) 15-7/8 (403) 16 (406) 8-3/4 (222) 150 (67.8)
080C21--20 21 (533) 19-3/8 (492) 19-1/2 (495) 10-1/2 (267) 161 (72.8)
100C21--22 21 (533) 19-3/8 (492) 19-1/2 (495) 10-1/2 (267) 166 (75.1)
120C24--22 24-1/2 (622) 22-7/8 (581) 23 (584) 12-1/4 (311) 184 (83.5)
WARNING
!
CARBON MONOXIDE POISONING HAZARD
Failure to follow this warning could result in personal injury and/or
death.
Carbon Monoxide (CO) is a colorless, odorless, and tasteless poisonous
gas that can be fatal when inhaled. Follow all installation, maintenance,
and service instructions. See additional information below regarding
the installation of a CO Alarm.
WARNING
!
FIRE, INJURY, OR DEATH HAZARD
Failure to follow this warning could result in property damage, personal
injury, or death.
This furnace was manufactured to operate with natural gas. When fuel
supply is Liquid Propane (LP), this furnace must
be converted with a
factory approved LP conversion kit. See furnace rating plate for
approved conversion kit.

Table of Contents

Related product manuals