EasyManua.ls Logo

Carrier Performance 50VR-K - Required Clearances

Carrier Performance 50VR-K
32 pages
Print Icon
To Next Page IconTo Next Page
To Next Page IconTo Next Page
To Previous Page IconTo Previous Page
To Previous Page IconTo Previous Page
Loading...
50VR-K: Installation Instructions
Manufacturer reserves the right to change, at any time, specifications and designs without notice and without obligations.
4
A230206
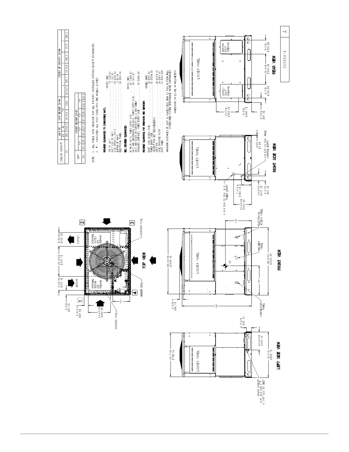
Fig. 2 – 50VR-K 24 Unit Dimensions

Related product manuals