EasyManua.ls Logo

Carrier WeatherExpert 48LCD05 - Page 74

Carrier WeatherExpert 48LCD05
76 pages
To Next Page IconTo Next Page
To Next Page IconTo Next Page
To Previous Page IconTo Previous Page
To Previous Page IconTo Previous Page
Loading...
Manufacturer reserves the right to discontinue, or change at any time, specifications or designs without notice and without incurring obligations.
Catalog No. 04-53480279-01 Printed in U.S.A. Form 48LC-4-6-02SM Pg 74 2-2020 Replaces: 48LC-4-6-01SM
© 2020 Carrier Corporation
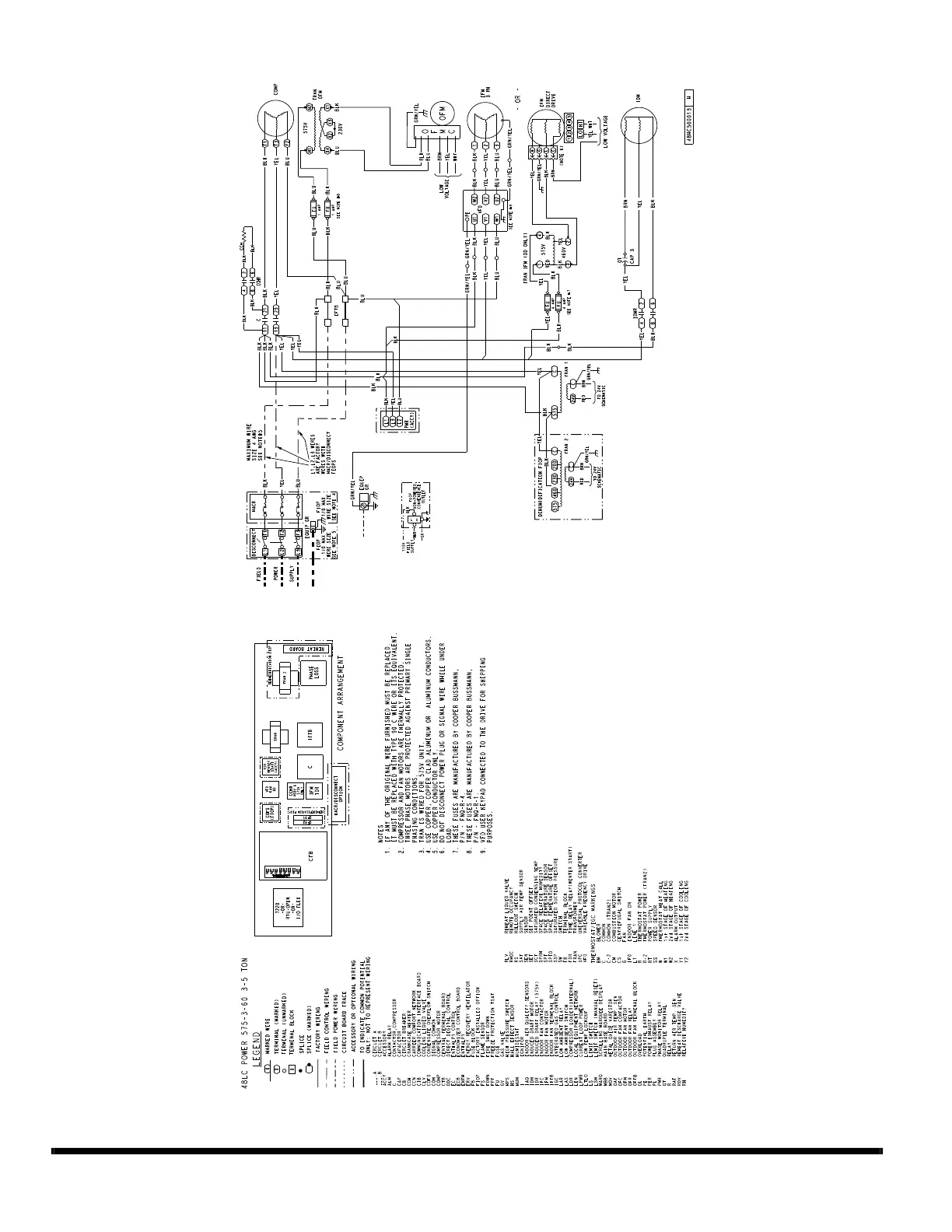
Fig. E — 48LC**04-06 Power Wiring Diagram (575-3-60)
APPENDIX D WIRING DIAGRAMS

Table of Contents

Related product manuals