EasyManua.ls Logo

Cedima CF-2116 D - Electro Circuit of the CF-2116 D

Cedima CF-2116 D
64 pages
Print Icon
To Next Page IconTo Next Page
To Next Page IconTo Next Page
To Previous Page IconTo Previous Page
To Previous Page IconTo Previous Page
Loading...
ENGLISH
59
Circuit diagrams
CEDIMA
®
• Technical Documentation • All rights reserved as per ISO 16016 • Subject to modications due to progressive development •
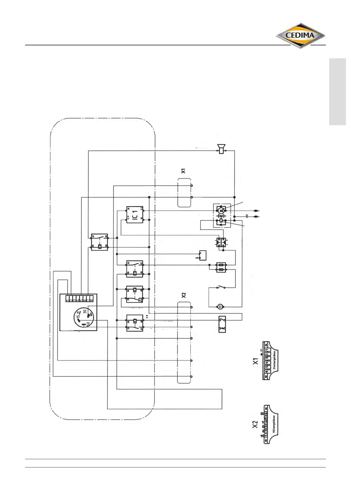
9.0 Circuit diagrams of the CF-2116 D joint cutter
9.1 Electro circuit of the CF-2116 D
Fig. 9.1
E-Box CF-2000
MC-704-h rear side
operating hour
meter
X 6
3
brown
3
lilac
24
red
x 3a
sleeve
housing
plug housing
limit
switch
water
pump
turn-
switch
fuses control
switch
raise/lower
motor
raise
solenoid
valve
lower
blue 1,5
2
blue 2,5
2
Horn
X 6
X 5X 11
X 1X 10
X 4a
X 9
X 12 lilac 1
2
blue/white 1
2
blue/red 1
2
3/black 2,5
2
green/black 1
2
black 6
2
X 3c
X 3a
X 4b 0/1
2
1/black 6
2
yellow/black
battery
red 2,5
2
blue
black 2,5
2
2/1
2
D+ X2
4/1
2
oil X2
24/1
2
15
3/2,5
2
50
X 2a 5W2,6
2
lilac 1,5
2
1/2,5
2
30
0/1
2
31
33
Honda stop
X 3
X 4c

Related product manuals