EasyManua.ls Logo

Cessna T188C - Page 600

Cessna T188C
624 pages
Print Icon
To Next Page IconTo Next Page
To Next Page IconTo Next Page
To Previous Page IconTo Previous Page
To Previous Page IconTo Previous Page
Loading...
MODEL
188
&
T188
SERIES
SERVICE
MANUAL
ESL
u
1 °.
I
J
.5.5
d>
se
I
J
)rRIM
-
LIGNT
-
^ ----
BLU(RLV)--55
__
5--LOWER
lST
L-IG-S
*-T^
-
7-TA
RC
.F)-L5
(See
Sheet
2)
T
+
Q-RED (BQc E-- i
1
.-
-
LB4
1--
^-((RWF()-ZL.-----
LB3
A
-i
_
EQ-)
- - -
.__-_LB
--
LA0CREF)
TO
MAP
LT
0O 0
LBS
_/o
I----
i
N
N^V
lINST
LuI B'I
)o*~lr
c1
IT
P.5T
.'4
C-rec
B3RLES5E
15-2-7
L
IGHT
I
NG
(OPT)
Po*J
2enE~
kt-
3
.
7 Sc. t
Icot
oe0
o. o
'
OTHE
.
C171379
1
67004
3
K&LrI
NONE
S (512R e4S
)i
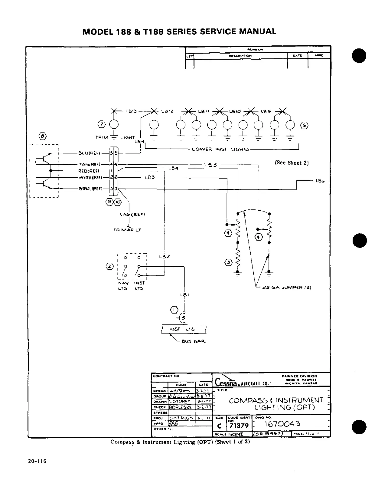
Compass
&
instrument
Lighting
(OPT)
(Sheet
1
o
2)
20-116

Table of Contents

Related product manuals