(+)
( )
GND
(+)
( )
GND
(+)
( )
GND
(+)
( )
GND
DOOR NO
DOOR NC
DOOR C
GATE NO
GATE NC
GATE C
12V
AC/DC
POWER
INPUT
GND
INPUT
VCR NO
VCR C
TEL
L NE
TIP
RING
RS 485 (1)
RS 485 (2)
RS 485 3)
5 4)
GATE
RELAY
DOOR
RELAY
CHASS S
GROUND
POSTAL/EXIT
SW INPUT
VCR
RELAY
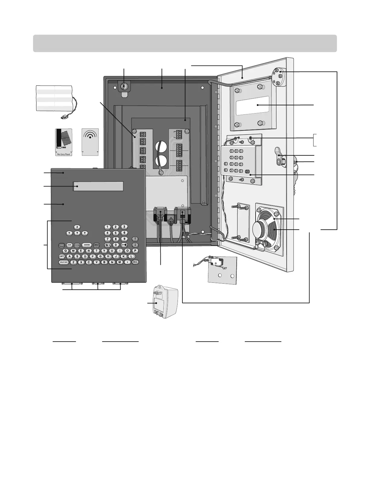
T009 T035
T033
T031
T037
T029
T003
T002
T014SPT
T012SPT
T026
T010
T011
T060
T000
T030
T027
T000 Transformer 12 Vac 50VA (Provided)
T002 External Keypad
T003 Keylock
T009 Processor Containment Box (Back Box)
T010 Processor Key Release / Lock
T011 Battery Back-Up
T012SPT 9-Pin Comm Port Connector (Surge Protection Terminal)
T014SPT External Box Connection Kit (Surge Protection Terminal)
T020 LC Complete Internal Metal Box (Processor Box)
T025 Programming Keys
T026 Postal Lock Assembly
T027 LCD Processor - No Memory Card
T029 Key for Internal / External Lock
T030 LCD Display
T031 Kit for Keypad Light
T032 Phone Control Board (Inside Processor)
LC Part # LC Description
T025
T020
T044
T032
T033 LCD Display Window
T035 LC External Box Assembly
T036 Heater Pad Option (Pre-Installed in Processor)
T037 Keypad Light
T044 Speaker 4 OHM
T060 Dial Code Surge Protection Board
T25MEM 25 Name Memory Card
T50MEM 50 Name Memory Card
T150MEM 150 Name Memory Card
T250MEM 250 Name Memory Card
T500MEM 500 Name Memory Card
T1000MEM 1000 Name Memory Card
RFCARD4K RS485 Communicator Card 4000
RFCARD8K RS485 Communicator Card 8000
RFCARD16K RS485 Communicator Card 16000
LC Part # LC Description
El te Entry Phone
COMMUNIC TOR CARD
Remote Access RS-485
capacity
Memory
Card
RS485
Card
LC Processor