EasyManua.ls Logo

Chamberlain LiftMaster Security+ 311 - Determinar la Localización del Ménsula del Cabezal

Chamberlain LiftMaster Security+ 311
80 pages
Print Icon
To Next Page IconTo Next Page
To Next Page IconTo Next Page
To Previous Page IconTo Previous Page
To Previous Page IconTo Previous Page
Loading...
12
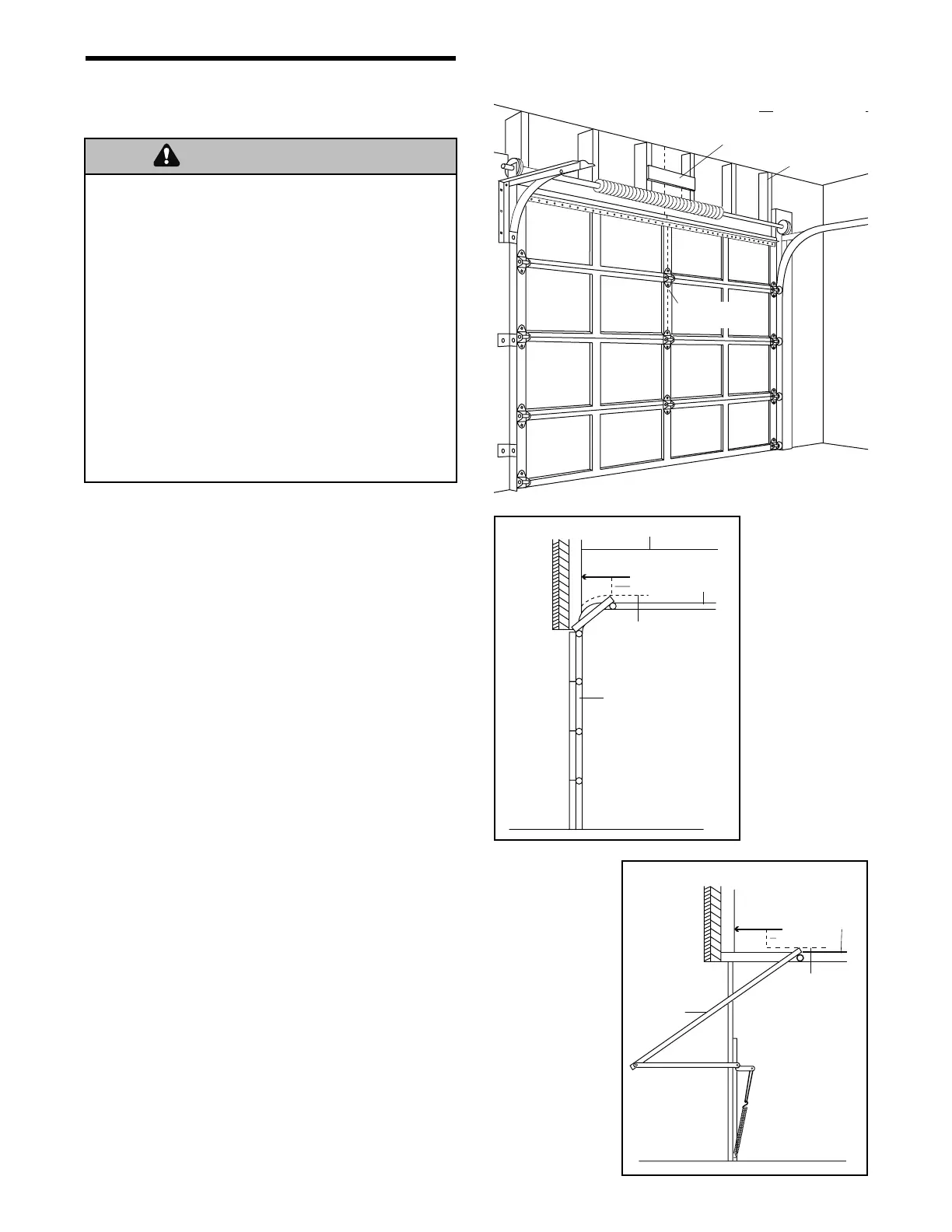
INSTALACIÓN PASO 1
Determinar la localización del ménsula
del cabezal
Los procedimientos de instalación varían según el tipo de
puerta de garaje. Siga las instrucciones que se aplican a
su puerta.
PUERTA SECCIONAL Y PUERTA DE UNA SOLA
PIEZA CON RIELES
1. Con la puerta cerrada, localizar y marcar el centro
vertical de la puerta del garaje.
2 Extender la línea de centro hasta la pared del cabezal
que se ubica sobre la puerta.
Se puede sujetar el soporte del cabezal dentro de
una distancia de 1.2 m (4 pies) a la izquierda o a la
derecha del centro de la puerta solamente si estorba
un resorte de torsión o placa de cojinete central.
También se puede sujetar al cielo raso (ver página
14) si el espacio libre es mínimo. (Asimismo, se
puede instalar en forma invertida sobre la pared si
fuese necesario. Esto le otorgará aproximadamente
1 cm (1/2 de pulg.) de espacio).
Si necesita instalar la ménsula del cabezal en un
pedazo de madera de 3.8 cm ([un tablon de madera de
2x4 pulg.] ya sea en la pared o en el cielo raso), use
tornillos de cabeza cuadrada o pijas (no se incluyen)
para sujetar dicho pedazo de madera a los soportes
estructurales, como se indica aquí y en la página 13.
3. Abra la puerta hasta el punto más alto de su recorrido
como se indica. Marque una línea horizontal que
intersecte la pared delantera a 5 cm (2 pulg.) del punto
más alto del recorrido. A esta altura, el extremo superior
de la puerta tendrá suficiente espacio para su recorrido.
Proceder al Paso 2, Página 14.
Puerta de una
sola pieza con
riel horizontal
Pared de cabecera
Cielo raso
Riel
Punto más alto
del recorrido
Puerta
5 cm (2 pulg.)
Puerta
secciónal con
riel en curva
Punto más alto
del recorrido
Puerta
Pared de cabecera
Riel
5 cm (2 pulg.)
Cielo raso terminado
Pared de
cabezal
Soporte
Pedazo
de madera
de 3.8 cm (2 x 4 pulg.)
Línea vertical del
centro de la puerta
Para evitar una posible LESIÓN GRAVE O INCLUSO LA
MUERTE:
La ménsula del cabezal DEBE quedar RÍGIDAMENTE sujeta al
soporte estructrual en la pared delantera o en el cielo raaso,
de no ser así es posible que la puerta del garaje no retroceda
cuando se requiera. NO instale la ménsula del cabezal en
muros falsos.
Se DEBEN usar sujetadores para concreto si el montaje de la
ménsula del cabezal o del pedazo de madera de 3.8 cm
(2x4 pulg.) se hace en mampostería.
NUNCA trate de aflojar, mover, ni ajustar la puerta del garaje,
los resortes, los cables, las pleas, las ménsulas ni la
pernería, pues todas estas piezas están bajo una tensión
EXTREMA.
SIEMPRE llame a un técnico especializado en sistemas de
puertas si la puerta del garaje se atasca, atora o si está
desquilibrada. Una puerta de garaje que no esté equilibrada
puede no retroceder cuando se requiera.
PRECAUCIÓN
ADVERTENCIA
ADVERTENCIA
ADVERTENCIA
ADVERTENCIA

Table of Contents

Related product manuals