EasyManua.ls Logo

CIAT LJA600 - Emplacement des Thermistances Et Sécurités; Mise en Route

CIAT LJA600
28 pages
Print Icon
To Next Page IconTo Next Page
To Next Page IconTo Next Page
To Previous Page IconTo Previous Page
To Previous Page IconTo Previous Page
Loading...
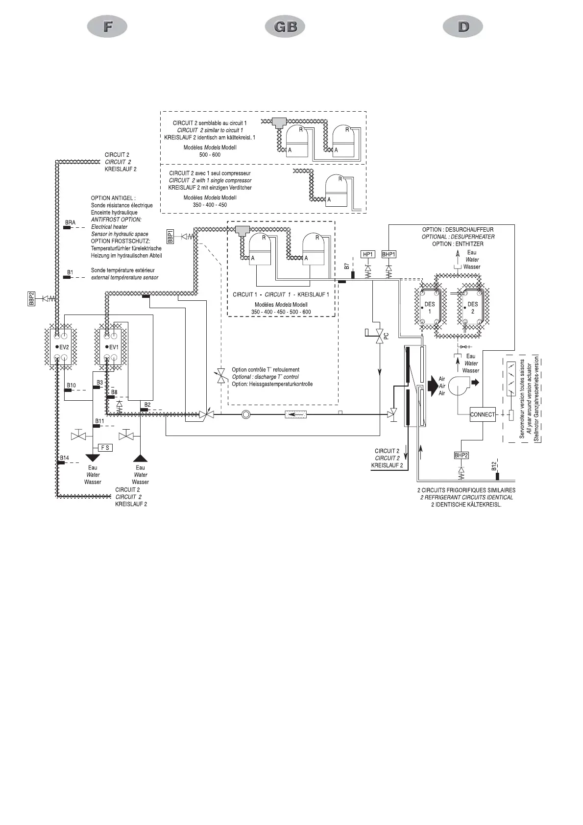
Emplacement des
thermistances et
sécurités
Location of thermistors
and safety devices
Lage der Thermistoren und
Sicherungen
Mise en route
Vérifications avant mise
en route
- S'assurer de l'absence de toute fuite de
fluide frigorigène.
- Ouvrir les vannes du circuit d'eau et
s'assurer que l'eau circule dans le
refroidisseur quand la pompe est en service.
- Purger l'air du circuit hydraulique.
- Vérifier le fonctionnement du contrôleur de
circulation et l'asservissement eau glacée.
- Vérifier le serrage de toutes les connexions
électriques.
- S'assurer que la tension du réseau
correspond à la tension de l'appareil et que
sa valeur reste dans les limites admissibles
(+6% -10% par rapport aux tensions
nominales, déphasage < 2 %).
- Vérifier le sens de rotation du ventilateur.
Séquence de démarrage
Faire fonctionner les émetteurs de froid
pour avoir une charge calorifique afin que le
refroidisseur puisse fonctionner.
Mettre sous tension la carte principale.
Commissioning
Verifications before com-
missioning
- Ensure that there are no refrigerant leak.
- Open the water circuit valves and check that
water flows through the chiller when the
pump operates.
- Bleed the air from the hydraulic circuit.
- Check the operation of the flow controller
and chilled water interlock.
- Check that all electrical connections are
firmly tightened.
- Check that the mains voltage corresponds
to the unit’s voltage and that the value is
within the permitted limits (+6%–10% with
respect to the nominal voltages, phase offset
< 2 %).
- Check the fan rotation direction.
Commissioning sequence
Operate the chiller outlets to provide a
heat load so that the chiller can operate.
Power up the main board.
Inbetriebnahme
Überprüfungen vor der
Inbetriebnahme
- Sicherstellen, dass kein Leck am Kältekreis vorliegt.
- Die Ventile des Wasserkreises öffnen und prüfen, ob
das Wasser im Flüssigkeitskühler zirkuliert, wenn die
Pumpe eingeschaltet ist.
- Den Wasserkreis entlüften.
- Prüfen, ob der Strömungswächter und die
Kaltwasserregelung korrekt funktionieren.
- Prüfen, ob alle elektrischen Anschlüsse richtig fest
verbunden sind.
- Sicherstellen, dass die Netzspannung der
Gerätespannung entspricht und die Werte innerhalb
der Grenzwerte liegen (+6% -10% gegenüber der
Nennspannung, Phasenverschiebung < 2 %).
- Den Drehsinn der Ventilator prüfen.
Anlaufen
Die Kälteübertragung einschalten, um eine
Wärmebelastung zum Betrieb des Flüssigkeitskühlers
zu erhalten.
Die Spannungszufuhr für die Hauptschaltkarte
einschalten.
16

Related product manuals