EasyManua.ls Logo

Cisco NCS 5500 Series

Cisco NCS 5500 Series
146 pages
To Next Page IconTo Next Page
To Next Page IconTo Next Page
To Previous Page IconTo Previous Page
To Previous Page IconTo Previous Page
Loading...
To bolt the rack to the floor, a floor bolt kit (also called an anchor embedment kit) is required. For information on bolting
the rack to the floor, consult a company that specializes in floor mounting kits (such as Hilti; see Hilti.com for details).
Make sure that floor mounting bolts are accessible, especially if annual retorquing of bolts is required.
Clearance Requirements
You must provide adequate clearance between the chassis and any other rack, device, or structure inorder to
properly install the chassis, route cables, provide airflow, and maintain the router.
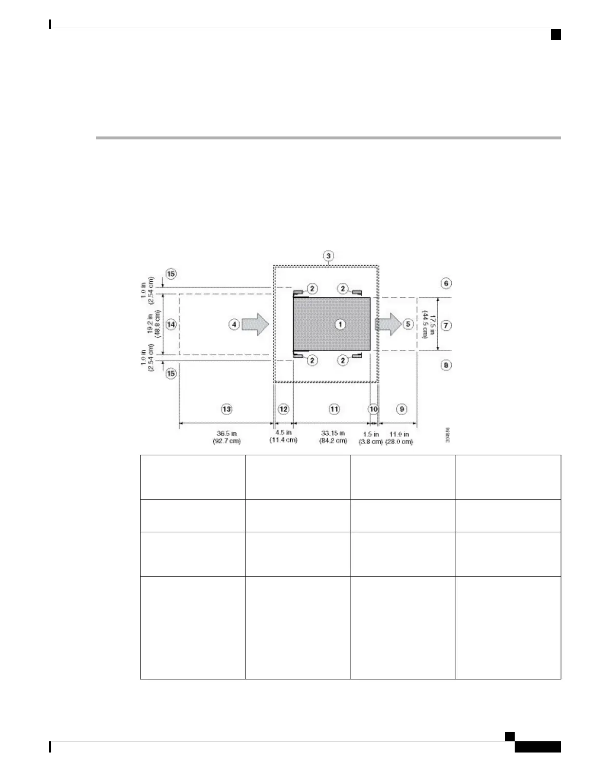
For the clearances required for an installation of NCS 5504 chassis, see the following figure.
Figure 6: Clearances Required Around the Chassis for NCS 5504
Rear service clearance
required to replace fan
trays and fabric cards
9Chassis1
Clearance required for
module handles
10Vertical rack-mount posts
and rails
2
Chassis depth11Nearest object or inside of
cabinet (no side clearance
required)
3
Clearance required
between the front of the
chassis and the inside of
the cabinet (if used) or the
edge of the cold aisle (if
not cabinet) for the
optional side filter and
front door
12Air intake from the cold
aisle for all modules and
power supplies
4
Hardware Installation Guide for Cisco NCS 5500 Series Modular Routers
27
Prepare for Installation
Clearance Requirements

Table of Contents

Other manuals for Cisco NCS 5500 Series

Related product manuals