EasyManua.ls Logo

Claas DISCO 3000TRC - 6.0 VOLTO 670 hydraulic system

Claas DISCO 3000TRC
130 pages
Print Icon
To Next Page IconTo Next Page
To Next Page IconTo Next Page
To Previous Page IconTo Previous Page
To Previous Page IconTo Previous Page
Loading...
Hydraulic System VOLTO TIC
5-18 10/04
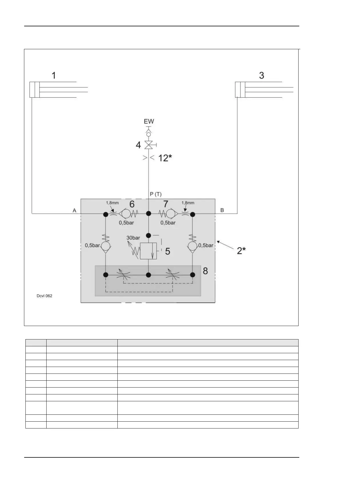
6.0 VOLTO 670 hydraulic system
Item Designation Remark
1 Hydraulic cylinder
2* Flow divider Supplied by PISTER. Only on VOLTO with synchronous raising.
3 Hydraulic cylinder
4 Shut-off tap Open while machine is in use. Close for transport.
5 Pressure relief valve Adjusting range 0.. 50 bar, ex-works setting: 30 bar
6 Non-return valve
7 Non-return valve
8 Pressure balance
12* Orifice plate Is built into VOLTO 660 without synchronous raising = flow divider
(2*) is not provided
EW Port of single-acting control unit

Table of Contents

Related product manuals