EasyManua.ls Logo

Claas DISCO 3000TRC - 5.0 VOLTO 770 T hydraulic system

Claas DISCO 3000TRC
130 pages
Print Icon
To Next Page IconTo Next Page
To Next Page IconTo Next Page
To Previous Page IconTo Previous Page
To Previous Page IconTo Previous Page
Loading...
Hydraulic System VOLTO TIC
5-16 10/04
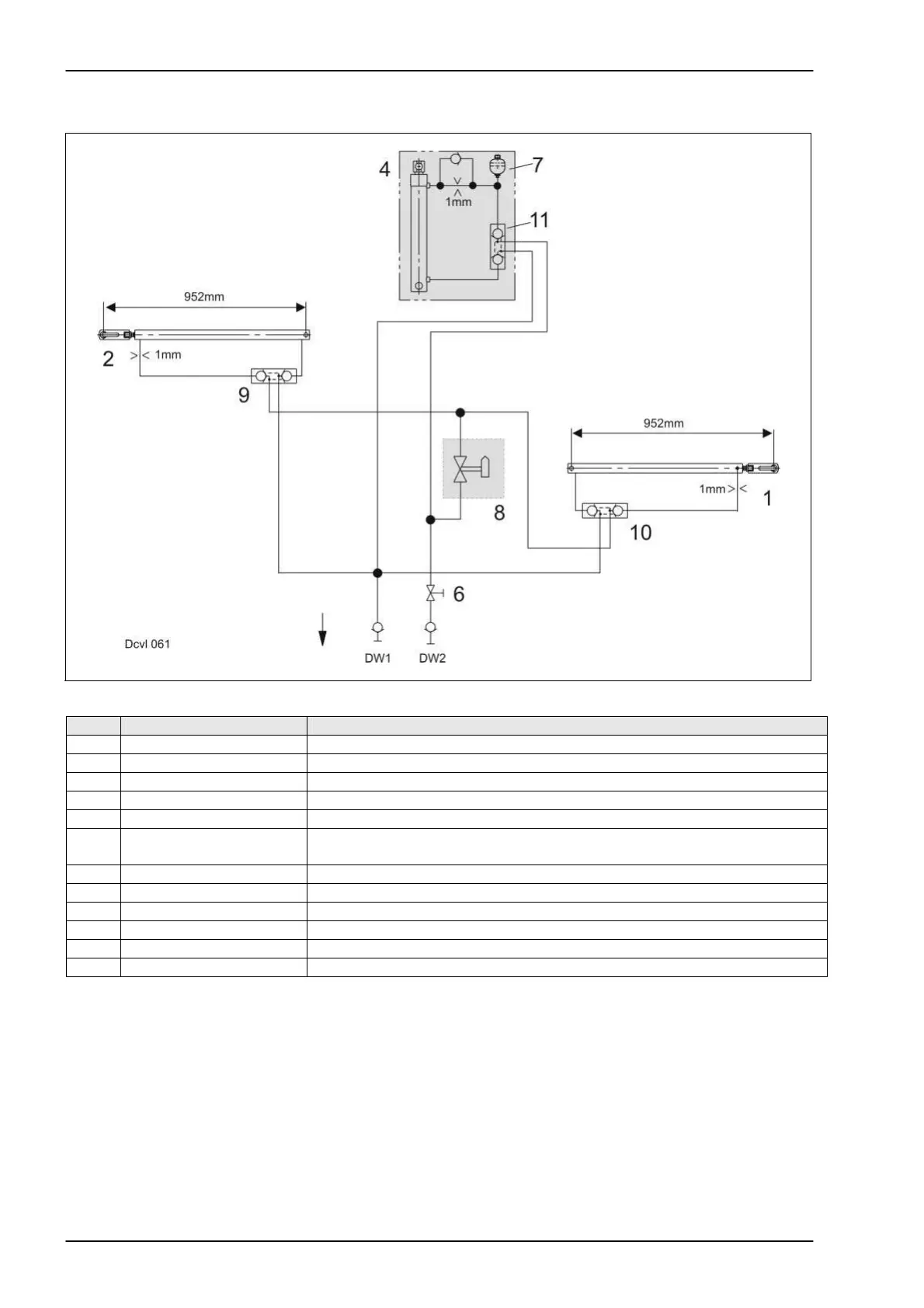
5.0 VOLTO 770 T hydraulic system
Item Designation Remark
1 Hydraulic cylinders Actuate the left outer arms
2 Hydraulic cylinders Actuate the right outer arms
4 Hydraulic cylinder Raises and lowers the chassis
6 Block-type ball valve Open while machine is in use. Close for transport.
7 Accumulator Pre-stress: 40bar. Volume: 0.16 litres
8 Block-type ball valve Must be open when in working position.
Closed only during dispatch and repair.
9 Lock-up valve unit Prevents uncontrolled movements of hydraulic cylinder under load.
10 Lock-up valve unit Prevents uncontrolled movements of hydraulic cylinder under load.
11 Lock-up valve unit Prevents uncontrolled movements of hydraulic cylinder under load.
DW of double-acting control unit
EW of single-acting control unit

Table of Contents