EasyManua.ls Logo

Clarion PN-2940S-A

Clarion PN-2940S-A
28 pages
To Next Page IconTo Next Page
To Next Page IconTo Next Page
To Previous Page IconTo Previous Page
To Previous Page IconTo Previous Page
Loading...
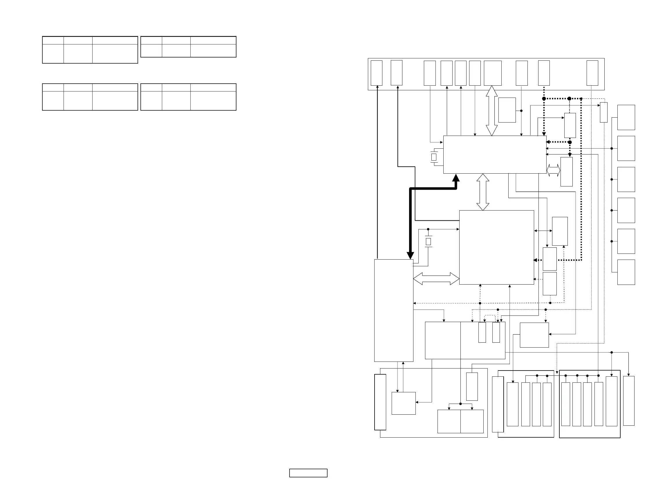
BLOCK DIAGRAM
- M13 -
929-0383-80
REF No. PART No. DESCRIPTION REF No. PART No. DESCRIPTION
Sensor-L-PFC(BM2) section
PT1 060-0252-01 PT14850F
PT2 060-0252-01 PT14850F
PT3 051-5833-00 GP1S093HCZ
PWB 039-2467-21 PWB(WITHOUT
COMPONENTS)
Sensor-U-PFC(BM3) section
REF No. PART No. DESCRIPTION REF No. PART No. DESCRIPTION
LED1 001-7077-00 GL4804
LED2 001-7077-00 GL4804
LED3 001-7077-00 GL4804
S5 013-7417-50 ABC1122P161
PWB 039-2466-20 PWB(WITHOUT
COMPONENTS)
CDICSERVO
X1
16.92MHz
X3
20MHz
PON3
LEDSW
PON2
PON1
J1
19PIN
CONNECTOR
DRIVE UNIT
DRIVE UNIT
LOADING MOTOR
SW5
LIMIT SW
SPINDLE
MOTOR
SLED
MOTOR
PICK UP
KSS661
LOADING UNIT
LOADING UNIT
MOTOR
-DRIVER
IC9
BD7931F
CD-IC
IC1
TC94A15F
MICOM
EEPROM
BR93L56RF
VDD
3.3V
VDD-REF
3.3V
UP/DOWN MOTOR
SW2 SW3 SW4
/REQ
SCL
SDA
CD-9V
PHOT4
Q1
SERVO DRIVER
IC4
BD7961FM
MOTOR DRIVER
SW1
MODE MOTOR
PHOT5
IC10
AUDIO
L&R-CH
DECORDER
IC3
TC94A34FG-007
DRAM
16M
SPDIF
PHOT1
SYS-ACC
A-MUTE
B/U DET
CD3.3V
DSP1.5V
SRAM
RESET
DSP1.5V
DSP
CD5V
LED SW
RESET
BD5227G
IC5
CLOCK
(DATA)
Q8, Q12
IC12
IC11
IC6
IC8
IC2
TMP91CY22IFG
-6P89
PON1
MOT4
MOT5
MOT1
MOT2
MOT3
PHOT2
PHOT3
LED1
LED2
LED3

Related product manuals