EasyManua.ls Logo

ClimateMaster Console CCE Series - Page 16

ClimateMaster Console CCE Series
30 pages
Print Icon
To Next Page IconTo Next Page
To Next Page IconTo Next Page
To Previous Page IconTo Previous Page
To Previous Page IconTo Previous Page
Loading...
C l i m a t e M a s t e r Wa t e r-S o u r c e H e a t i n g a n d C o o l i n g S y s t e m s
C L I M A T E M A S T E R W A T E R - S O U R C E H E A T P U M P S
C o n s o l e s
R e v. : 0 8 / 1 3 / 1 0
16
Right Hand Bottom Return
251
.
Add 50.8 mm to dimension shown for 5” subbase
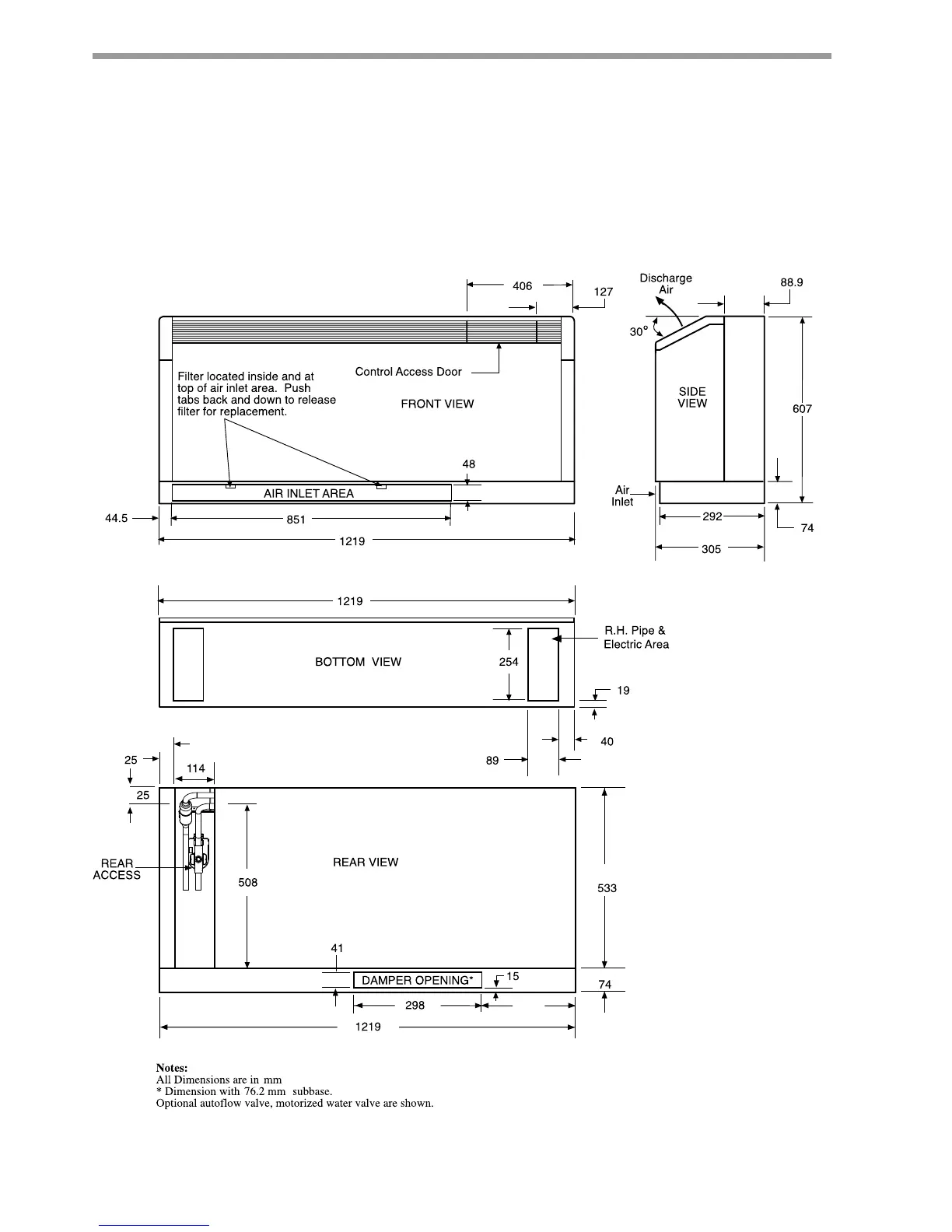
Physical Dimensions

Related product manuals