EasyManua.ls Logo

CM Lodestar RRT - Page 35

Default Icon
128 pages
Print Icon
To Next Page IconTo Next Page
To Next Page IconTo Next Page
To Previous Page IconTo Previous Page
To Previous Page IconTo Previous Page
Loading...
35
00001996 (REV AC) 627NH October 2014
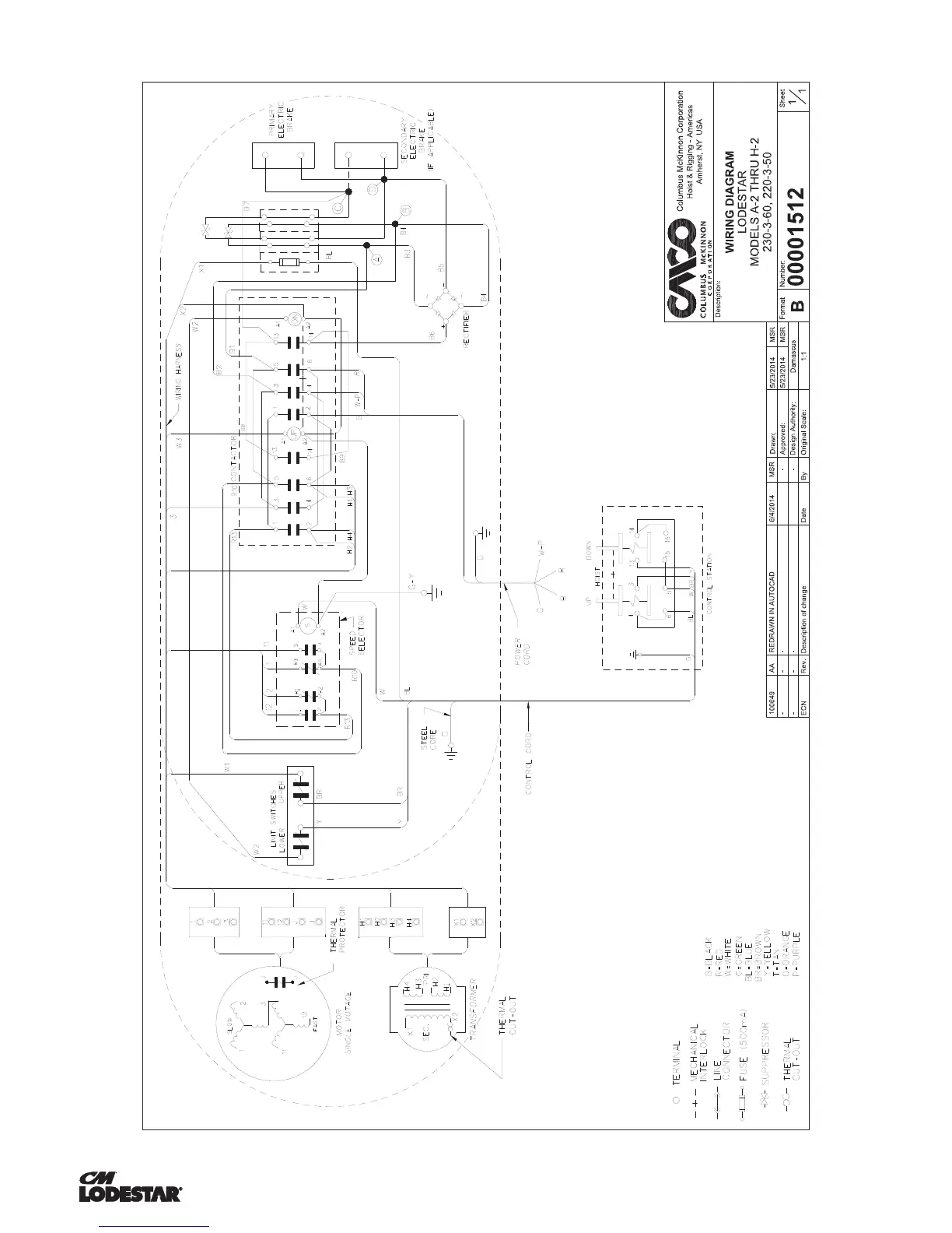
REFERENCE WIRING DIAGRAMS

Table of Contents

Related product manuals