EasyManua.ls Logo

CODEL SmartCem V-CEM5100 - Transducer Heads; Psu & Spu

CODEL SmartCem V-CEM5100
48 pages
Print Icon
To Next Page IconTo Next Page
To Next Page IconTo Next Page
To Previous Page IconTo Previous Page
To Previous Page IconTo Previous Page
Loading...
Technical Manual Page 10 CODEL
OPS.109
Issue : B
Date : 23/10/13
Doc. i/d : 0109/6
Ref. : 090028
4.3.3.
Transducer Heads
The transducer heads may be attached to the air purges by means of four hexagon head screws, with the
flexible gasket (supplied) fitted between them. The transducers will only fit in one position.
Make sure that the nylon insulating bushes are fitted to the air purge flange – if not fitted, DO
NOT attach the transducers and contact CODEL immediately.
4.3.4.
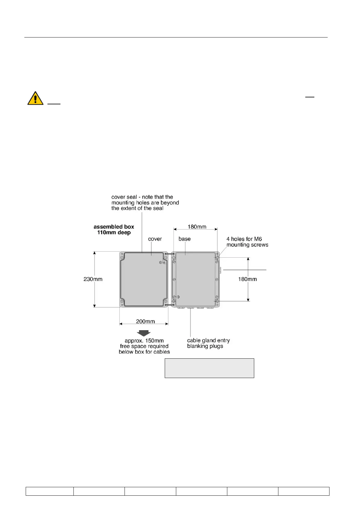
PSU & SPU
To mount the PSU & SPU first remove the cover by loosening the four captive screws. The case is then secured
to a firm support by use of the four mounting holes, one in each corner of the case. Since the mounting holes
are located outside the seal of the case it is not necessary to seal the mounting holes after installation, nor is it
necessary to remove the circuitry from the case for installation.
If commissioning is not to be carried out immediately reattach the lid to the SPU.
Dimensions and mounting details are shown in Figure 4.
NB. When fitting the mains cable in the PSU secure an M20 banjo earth ring under the gland locknut in
order to provide a good earth bond.
Figure 4 : PSU & SPU Mounting Details
cable gland entry
blanking plug
(PSU mains)
Note: do not use these cable
entry points for mains cables.