EasyManua.ls Logo

Cognex VisionView Web - Page 16

Cognex VisionView Web
31 pages
Print Icon
To Next Page IconTo Next Page
To Next Page IconTo Next Page
To Previous Page IconTo Previous Page
To Previous Page IconTo Previous Page
Loading...
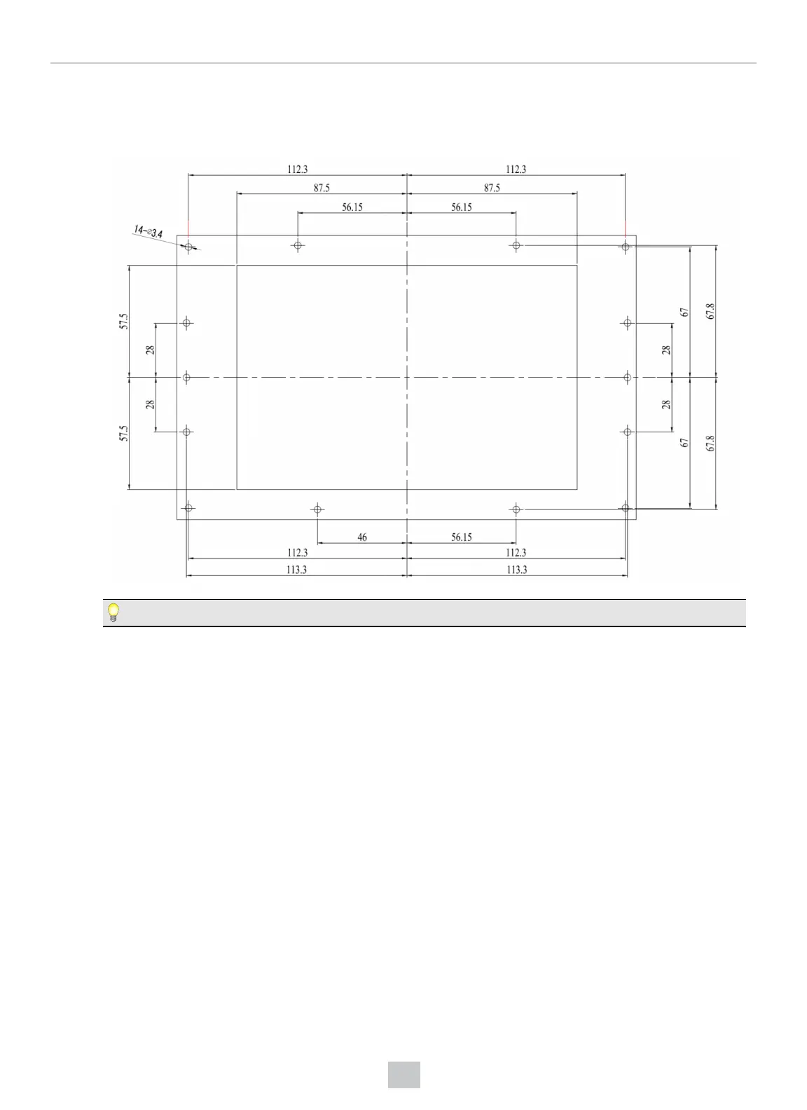
Mount VisionView Web Panel to Custom Bracket
1. Cut the screw holes into the bracket. Refer to the following image for the locations of the holes. The values are
provided in millimeters.
Tip: Cut the holes in the bracket using a professional machine shop.
16
Getting Started

Related product manuals