EasyManua.ls Logo

COMEM eSDB10 - Page 62

COMEM eSDB10
66 pages
Print Icon
To Next Page IconTo Next Page
To Next Page IconTo Next Page
To Previous Page IconTo Previous Page
To Previous Page IconTo Previous Page
Loading...
62
eSDB30
This document is issued by means of a computerized system.
The digitally stored original is electronically approved. The
approved document has a date entered in the `Approved'-field.
A manual signature is not required.
We reserve all rights in this document and in the information
contained therein. Reproduction, use or disclosure to third
parties without express authority is strictly fobidden.
F
E
D
C
B
8765432
A
1 109 11 12
G
H
1 2 3 4 5 6 7 8 9 10 11 12
A
B
C
D
E
F
G
H
DRAWING SHEET ISO 5457:1999-A2T
753 (29.64")
12 (0.472")
213 (8.39")
394 (15.5")
Ø35 (1.37")
Ø130 (5.12")
302 (11.88")
711 (28")
= =
195 (7.68")
110(4.33")30(1.18")
323.5 (12.79")
88.5 (3.48")
100
1/1 5
B
In Work
NE-269
SHEETITERREVSTATUSDOCUMENT ID
ITABB-9AAE306693
-
RESPONSIBLE DEPARTMENT
COMEM ESDB30
COMEM
TITLE / SUPPLEMENTARY TITLERESPONSIBLE COMPANY
Component Drawing-
PROJECT IDWORK ORDER IDBASED ON DOC IDDOCUMENT KINDAPPROVED ON
- -Diego Boro
APPROVED BYREVIEWED BYCREATED BY
© COPYRIGHT ALL RIGHTS RESERVED
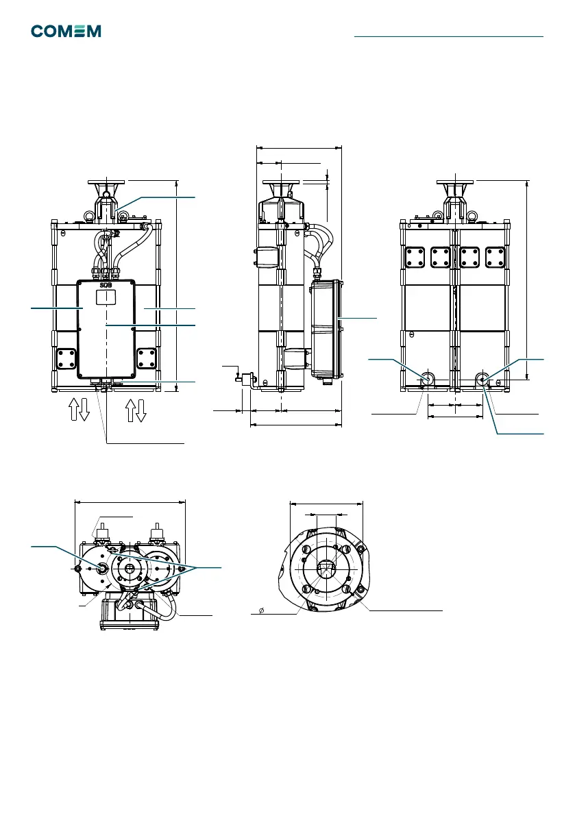
INLET/
OUTLET AIR
INLET/
OUTLET AIR
X DETAIL
NOTES:
- MINIMUM METAL SHEET THICKNESS: 5 mm
- ADVISED DIAMETER HOLE OF THE METAL
SHEET SUPPORT DEVICE: Ø13 mm
- FOR THE INSTALLATION FOLLOW THE
OPERATING INSTRUCTION
N°2 CABLE GLANDS TYPE
M25x1.5
M10
ANTIVIBRATION
DEVICE
ANTIVIBRATION
DEVICE
X DETAIL
EYE-BOLT
EYE-BOLT
N°4 HOLES Ø14 (0.551")
LAST REVISION
DESCRIPTION
AGGIORNATO DISEGNO - Drawing updated
REPLACED
REVISION
A
TOLLERANZE GENERALI SECONDO - GENERAL TOLERANCES ACCORDING TO ISO 2768
m
SCALE
NO
MATERIAL WEIGHT - kg
- - -
-
PROCESS PART NUMBER
- - -
C
M
Y
CM
MY
CY
CMY
K
ai16213323005_ne-269.pdf 1 18/05/2021 12:05:01
This document is issued by means of a computerized system.
The digitally stored original is electronically approved. The
approved document has a date entered in the `Approved'-field.
A manual signature is not required.
We reserve all rights in this document and in the information
contained therein. Reproduction, use or disclosure to third
parties without express authority is strictly fobidden.
F
E
D
C
B
8765432
A
1 109 11 12
G
H
1 2 3 4 5 6 7 8 9 10 11 12
A
B
C
D
E
F
G
H
DRAWING SHEET ISO 5457:1999-A2T
753 (29.64")
12 (0.472")
213 (8.39")
394 (15.5")
Ø35 (1.37")
Ø130 (5.12")
302 (11.88")
711 (28")
= =
195 (7.68")
110(4.33")30(1.18")
323.5 (12.79")
88.5 (3.48")
100
1/1 5
B
In Work
NE-269
SHEETITERREVSTATUSDOCUMENT ID
ITABB-9AAE306693
-
RESPONSIBLE DEPARTMENT
COMEM ESDB30
COMEM
TITLE / SUPPLEMENTARY TITLERESPONSIBLE COMPANY
Component Drawing-
PROJECT IDWORK ORDER IDBASED ON DOC IDDOCUMENT KINDAPPROVED ON
- -Diego Boro
APPROVED BYREVIEWED BYCREATED BY
© COPYRIGHT ALL RIGHTS RESERVED
INLET/
OUTLET AIR
INLET/
OUTLET AIR
X DETAIL
NOTES:
- MINIMUM METAL SHEET THICKNESS: 5 mm
- ADVISED DIAMETER HOLE OF THE METAL
SHEET SUPPORT DEVICE: Ø13 mm
- FOR THE INSTALLATION FOLLOW THE
OPERATING INSTRUCTION
N°2 CABLE GLANDS TYPE
M25x1.5
M10
ANTIVIBRATION
DEVICE
ANTIVIBRATION
DEVICE
X DETAIL
EYE-BOLT
EYE-BOLT
N°4 HOLES Ø14 (0.551")
LAST REVISION
DESCRIPTION
AGGIORNATO DISEGNO - Drawing updated
REPLACED
REVISION
A
TOLLERANZE GENERALI SECONDO - GENERAL TOLERANCES ACCORDING TO ISO 2768
m
SCALE
NO
MATERIAL WEIGHT - kg
- - -
-
PROCESS PART NUMBER
- - -
C
M
Y
CM
MY
CY
CMY
K
ai16213323005_ne-269.pdf 1 18/05/2021 12:05:01
This document is issued by means of a computerized system.
The digitally stored original is electronically approved. The
approved document has a date entered in the `Approved'-field.
A manual signature is not required.
We reserve all rights in this document and in the information
contained therein. Reproduction, use or disclosure to third
parties without express authority is strictly fobidden.
F
E
D
C
B
8765432
A
1 109 11 12
G
H
1 2 3 4 5 6 7 8 9 10 11 12
A
B
C
D
E
F
G
H
DRAWING SHEET ISO 5457:1999-A2T
753 (29.64")
12 (0.472")
213 (8.39")
394 (15.5")
Ø35 (1.37")
Ø130 (5.12")
302 (11.88")
711 (28")
= =
195 (7.68")
110(4.33")30(1.18")
323.5 (12.79")
88.5 (3.48")
100
1/1 5
B
In Work
NE-269
SHEETITERREVSTATUSDOCUMENT ID
ITABB-9AAE306693
-
RESPONSIBLE DEPARTMENT
COMEM ESDB30
COMEM
TITLE / SUPPLEMENTARY TITLERESPONSIBLE COMPANY
Component Drawing-
PROJECT IDWORK ORDER IDBASED ON DOC IDDOCUMENT KINDAPPROVED ON
- -Diego Boro
APPROVED BYREVIEWED BYCREATED BY
© COPYRIGHT ALL RIGHTS RESERVED
INLET/
OUTLET AIR
INLET/
OUTLET AIR
X DETAIL
NOTES:
- MINIMUM METAL SHEET THICKNESS: 5 mm
- ADVISED DIAMETER HOLE OF THE METAL
SHEET SUPPORT DEVICE: Ø13 mm
- FOR THE INSTALLATION FOLLOW THE
OPERATING INSTRUCTION
N°2 CABLE GLANDS TYPE
M25x1.5
M10
ANTIVIBRATION
DEVICE
ANTIVIBRATION
DEVICE
X DETAIL
EYE-BOLT
EYE-BOLT
N°4 HOLES Ø14 (0.551")
LAST REVISION
DESCRIPTION
AGGIORNATO DISEGNO - Drawing updated
REPLACED
REVISION
A
TOLLERANZE GENERALI SECONDO - GENERAL TOLERANCES ACCORDING TO ISO 2768
m
SCALE
NO
MATERIAL WEIGHT - kg
- - -
-
PROCESS PART NUMBER
- - -
C
M
Y
CM
MY
CY
CMY
K
ai16213323005_ne-269.pdf 1 18/05/2021 12:05:01
This document is issued by means of a computerized system.
The digitally stored original is electronically approved. The
approved document has a date entered in the `Approved'-field.
A manual signature is not required.
We reserve all rights in this document and in the information
contained therein. Reproduction, use or disclosure to third
parties without express authority is strictly fobidden.
F
E
D
C
B
8765432
A
1 109 11 12
G
H
1 2 3 4 5 6 7 8 9 10 11 12
A
B
C
D
E
F
G
H
DRAWING SHEET ISO 5457:1999-A2T
753 (29.64")
12 (0.472")
213 (8.39")
394 (15.5")
Ø35 (1.37")
Ø130 (5.12")
302 (11.88")
711 (28")
= =
195 (7.68")
110(4.33")30(1.18")
323.5 (12.79")
88.5 (3.48")
100
1/1 5
B
In Work
NE-269
SHEETITERREVSTATUSDOCUMENT ID
ITABB-9AAE306693
-
RESPONSIBLE DEPARTMENT
COMEM ESDB30
COMEM
TITLE / SUPPLEMENTARY TITLERESPONSIBLE COMPANY
Component Drawing-
PROJECT IDWORK ORDER IDBASED ON DOC IDDOCUMENT KINDAPPROVED ON
- -Diego Boro
APPROVED BYREVIEWED BYCREATED BY
© COPYRIGHT ALL RIGHTS RESERVED
INLET/
OUTLET AIR
INLET/
OUTLET AIR
X DETAIL
NOTES:
- MINIMUM METAL SHEET THICKNESS: 5 mm
- ADVISED DIAMETER HOLE OF THE METAL
SHEET SUPPORT DEVICE: Ø13 mm
- FOR THE INSTALLATION FOLLOW THE
OPERATING INSTRUCTION
N°2 CABLE GLANDS TYPE
M25x1.5
M10
ANTIVIBRATION
DEVICE
ANTIVIBRATION
DEVICE
X DETAIL
EYE-BOLT
EYE-BOLT
N°4 HOLES Ø14 (0.551")
LAST REVISION
DESCRIPTION
AGGIORNATO DISEGNO - Drawing updated
REPLACED
REVISION
A
TOLLERANZE GENERALI SECONDO - GENERAL TOLERANCES ACCORDING TO ISO 2768
m
SCALE
NO
MATERIAL WEIGHT - kg
- - -
-
PROCESS PART NUMBER
- - -
C
M
Y
CM
MY
CY
CMY
K
ai16213323005_ne-269.pdf 1 18/05/2021 12:05:01
This document is issued by means of a computerized system.
The digitally stored original is electronically approved. The
approved document has a date entered in the `Approved'-field.
A manual signature is not required.
We reserve all rights in this document and in the information
contained therein. Reproduction, use or disclosure to third
parties without express authority is strictly fobidden.
F
E
D
C
B
8765432
A
1 109 11 12
G
H
1 2 3 4 5 6 7 8 9 10 11 12
A
B
C
D
E
F
G
H
DRAWING SHEET ISO 5457:1999-A2T
753 (29.64")
12 (0.472")
213 (8.39")
394 (15.5")
Ø35 (1.37")
Ø130 (5.12")
302 (11.88")
711 (28")
= =
195 (7.68")
110(4.33")30(1.18")
323.5 (12.79")
88.5 (3.48")
100
1/1 5
B
In Work
NE-269
SHEETITERREVSTATUSDOCUMENT ID
ITABB-9AAE306693
-
RESPONSIBLE DEPARTMENT
COMEM ESDB30
COMEM
TITLE / SUPPLEMENTARY TITLERESPONSIBLE COMPANY
Component Drawing-
PROJECT IDWORK ORDER IDBASED ON DOC IDDOCUMENT KINDAPPROVED ON
- -Diego Boro
APPROVED BYREVIEWED BYCREATED BY
© COPYRIGHT ALL RIGHTS RESERVED
INLET/
OUTLET AIR
INLET/
OUTLET AIR
X DETAIL
NOTES:
- MINIMUM METAL SHEET THICKNESS: 5 mm
- ADVISED DIAMETER HOLE OF THE METAL
SHEET SUPPORT DEVICE: Ø13 mm
- FOR THE INSTALLATION FOLLOW THE
OPERATING INSTRUCTION
N°2 CABLE GLANDS TYPE
M25x1.5
M10
ANTIVIBRATION
DEVICE
ANTIVIBRATION
DEVICE
X DETAIL
EYE-BOLT
EYE-BOLT
N°4 HOLES Ø14 (0.551")
LAST REVISION
DESCRIPTION
AGGIORNATO DISEGNO - Drawing updated
REPLACED
REVISION
A
TOLLERANZE GENERALI SECONDO - GENERAL TOLERANCES ACCORDING TO ISO 2768
m
SCALE
NO
MATERIAL WEIGHT - kg
- - -
-
PROCESS PART NUMBER
- - -
C
M
Y
CM
MY
CY
CMY
K
ai16213323005_ne-269.pdf 1 18/05/2021 12:05:01
Figure 19
1
C
C
G
B
2
E
F
D D
A
SELF-DEHYDRATING BREATHERS eSDB 10/15/30
Appendix E - Drawings

Table of Contents

Related product manuals