EasyManua.ls Logo

Commax DRC-481L - Main Entrance Interphone Wiring (DRC-481 L)

Commax DRC-481L
53 pages
Print Icon
To Next Page IconTo Next Page
To Next Page IconTo Next Page
To Previous Page IconTo Previous Page
To Previous Page IconTo Previous Page
Loading...
- 36-
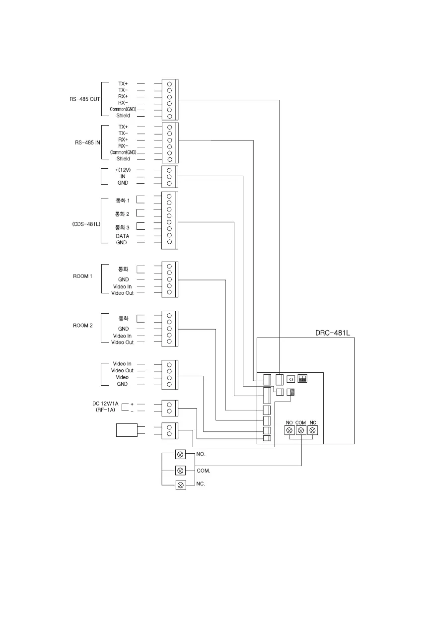
󱄿Security
DC 12V used.
Designed to be used by connecting to the lead switch. When not in use, please connect two wires.
When the Main Entrance is opened by force, the Guardhouse and the computer are notified.
Bk
Br
R
Or
Y
G
Bk
Br
R
Or
Y
G
B
Pu
Bk
Br
R
Or
Y
Bk
Br
R
Or
Y
R
B
Y
W
R
B
R
Y
Bk
Br
R
Or
Y
G
R
B
Y
Bk: Black
Br: Brown
R: Red
Or: Orange
Y: Yellow
G: Green
B: Blue
Pu: Purple
G: Gray
W: White
Infrared Sensor
Guardhouse
Monitor
Door Release
Mechanism
Security
(Household
Videophone)
(Household
Videophone)
2) Main Entrance Interphone (DRC-481L)

Related product manuals