EasyManua.ls Logo

Commax DRC-481L - Main Entrance Interphone Wiring (DRC-500 L)

Commax DRC-481L
53 pages
Print Icon
To Next Page IconTo Next Page
To Next Page IconTo Next Page
To Previous Page IconTo Previous Page
To Previous Page IconTo Previous Page
Loading...
- 37-
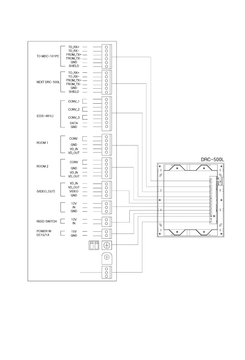
(DRC-500L)
󱄿Security
Use DC 15V.
It is designed to use a reed switch. When it is not used, connect two lines.
When the main entrance door is forced to open, it will be notified to the guardhouse and a
computer.
Bk
Br
R
Or
Y
G
Bk
Br
R
Or
Y
G
B
Pu
Bk
Br
R
Or
Y
Bk
Br
R
Or
Y
R
B
Y
W
R
B
Y
R
B
R
Y
Bk
Br
R
Or
Y
G
Bk: Black
Br: Brown
R: Red
Or: Orange
Y: Yellow
G: Green
B: Blue
Pu: Purple
G: Gray
W: White
Infrared Sensor
Guardhouse
Monitor
Door Release
Terminal
(Household
Videophone)
(Household
Videophone)

Related product manuals