EasyManua.ls Logo

Cornelius CB2323 - Cold Plate Plumbing & Wiring Diagram for CB2323 & CB3023 8 Valve

Cornelius CB2323
42 pages
Print Icon
To Next Page IconTo Next Page
To Next Page IconTo Next Page
To Previous Page IconTo Previous Page
To Previous Page IconTo Previous Page
Loading...
IntelliCarb Drop-In Ice Cooled Installation Guide
© 2003-2017, Cornelius Inc. - 23 - Publication Number: 630460204INS
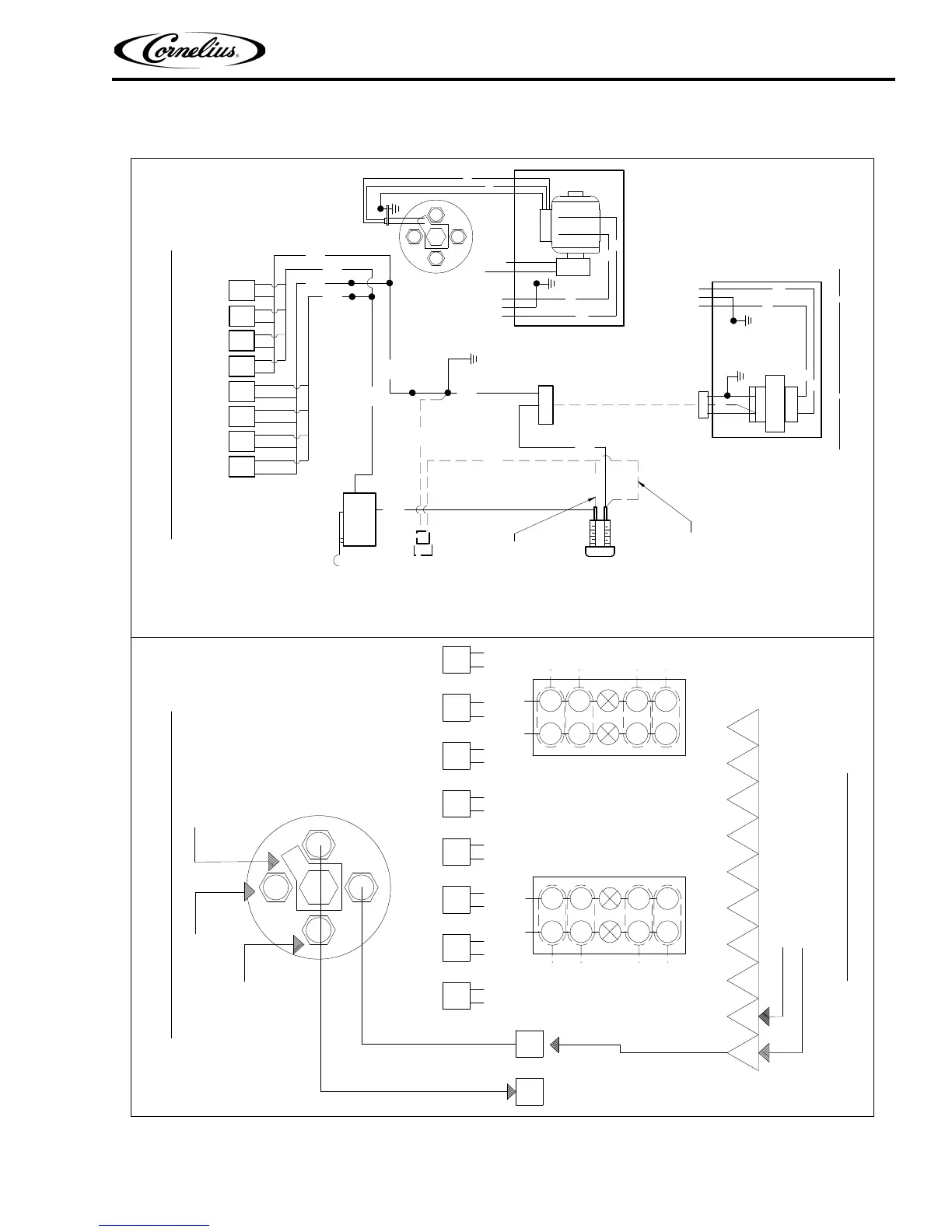
Cold Plate Plumbing & Wiring Diagram for CB2323 & CB3023 8 Valve
CONTINUOUSLY
BK
REMOTE TRANSFORMER BOX
WH
WH
BK
VALVE WIRE HARNESS
PLUG
24 VAC
LOCKOUT
1
2
3
MERCHANDISER
CONNECTION TO
HAVE MERCHANDISER
SWITCH
OPTIONAL
LIGHTED
BY KEYSWITCH
CONTROLLED
KEY
OUTLET
BK
BK
WH
2
3
1
24 VAC
BK
BK
COM
24 VAC MERCH.
OPTIONAL
CONNECTION
(SOME UNITS)
TO HAVE
WIRE HARNESS
SWITCH
BK
WH
BK
WH
BK
VALVES
24 VAC
VALVE
NO
REMOTE MOTOR/PUMP BOX
GRND
GRND
SUPPLY
115 VAC
POWER
WH
BK
BK
125 GPHB
PUMP
WH
WATER OUT - S
WATER IN
POWER
SUPPLY
115 VAC
WIRE
GROUND
GRND
WH
WH
CIRCUIT BOARD
BK
GRND
WH
WH
BK
BK
CARBONATOR
MANIFOLD LEFT
PLAIN WATER
FROM MOTOR/PUMP
CARBONATOR
8 VALVE UNIT
(FRONT VIEW)
PLUMBING DIAGRAM
DISPENSING VALVES
COLDPLATE INLETS
S
W1
12
M4
W4
M1
W1
M2
W2
M3
W3
SL SR
POST-CHILL
PRE-CHILL
12
M1 1
W1
M2 2
SODA OUT
WATER IN
GAS
VALVE
CO-2
345678
WIRING DIAGRAM
M5
W5
S5
S4
S1
S2
S3
MANIFOLD RIGHT
S8
W8
M8
S7
S6
W7
M7
W6
M6
435
SL
M3 3 M4 4 M5 5
WATER
678
M7
SR
6M6
W1
7M88
PROBE
SODA
Figure 16.

Related product manuals