EasyManua.ls Logo

COZY DVCF402D - Page 46

COZY DVCF402D
134 pages
Print Icon
To Next Page IconTo Next Page
To Next Page IconTo Next Page
To Previous Page IconTo Previous Page
To Previous Page IconTo Previous Page
Loading...
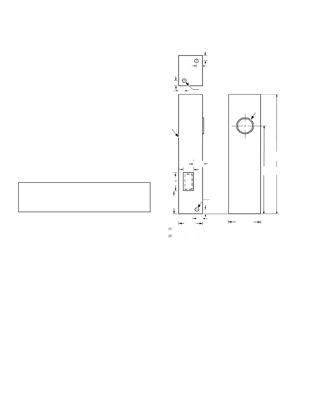
10 AÉROTHERME MURAL À GAZ À ÉVACUATION DIRECTE À CONTRE-COURANT
INSTALLATION DE VOTRE FOURNAISE
OUVERTURES D’ALIMENTATION EN GAZ ET EN ÉLECTRICITÉ
Des trous doivent être percés pour l’alimentation en gaz et en
électricité. Les trous doivent être situés de chaque côté de la
fournaise, comme illustré à la figure10.
Décidez si la conduite de gaz traversera le plancher ou le mur.
Percez un trou de 3,8cm (1½po) dans le mur ou le plancher
au besoin.
La conduite de gaz peut être posée à ce moment-là ou après
le montage de la fournaise, voir la section ALIMENTATION EN
GAZ ET TUYAUTERIE à la page16.
L'ouverture de l'alimentation électrique doit se trouver dans
la partie inférieure de la fournaise, de sorte à correspondre
aux ouvertures illustrées à la figure10. Marquez la plaque
murale du plafond et percez des trous. S’il s’avère impossible
d’acheminer le câblage à partir du grenier, percez des trous
à travers le montant mural et faites passer les câbles à travers
l’espace entre les montants adjacent à partir du vide sanitaire
ou du sous-sol.
Acheminez les câbles électriques avec le fil de mise à la
terre et le câble du thermostat jusqu’aux ouvertures. Laissez
suffisamment de longueur de câble pour le raccordement à
la boîte de jonction après l'installation de la fournaise. Voir la
section «Câblage électrique» à la page15.
INSTALLATION MURALE DÉCALÉE
Pour monter la fournaise murale sur un mur décalé, la zone
derrière la fournaise doit être affleurante ou plate.
Utilisez du bois de charpente (5x10cm (2pox4po), 5x15cm
(2pox6po), etc.) pour que la surface affleure au niveau de
l'autre partie du mur.
Utilisez des plaques de plâtre ou des lambris, etc. pour la
finition de la zone.
Suivez les procédures de la section Montage en surface.
MONTAGE EN SURFACE - LOCALISATION DES MONTANTS
1. Trouvez deux montants à l’endroit auquel la fournaise doit
être placée. Utilisez un localisateur de montants ou de
petits clous de finition. Enfoncez et retirez à répétition un
clou dans le mur situé dans la zone du montant, jusqu’à
ce que vous le trouviez. Trouvez ensuite un côté. Laissez le
clou à cet endroit. Enfoncez un autre clou de l’autre côté
du même montant.
2. Le bord intérieur de l’autre montant doit se trouver à
environ 37cm (14½pouces) de celui trouvé. Enfoncez le
clou de finition sur le bord intérieur de ce montant.
DÉCOUPE D’OUVERTURE D’ÉVENT
1. Délimitez et marquez le centre de l’orifice à découper à
travers le mur pour l’évent (page9, figure8). Prenez une
fenêtre, une porte ou un coin du mur comme repère et
mesurez pour
trouver l’emplacement de l’évent sur le mur
extérieur. Assurez-vous que les
dégagements sont adéquats.
(Voir les pages7 à 9, figures2, 4, 5, 6 et
7)
.
2. Percez un trou de 0,6cm (1⁄4po) au centre de l’orifice
d’évent jusqu’à l’extérieur. Découpez l’orifice de 23,5cm
(9¼po) de diamètre dans la paroi intérieure. Avec
l’orifice de 0,6cm (1⁄4po) comme centre, découpez un
orifice correspondant dans le mur extérieur. Il peut être
préférable de travailler de l’extérieur, surtout lorsque vous
devez traverser des briques, de la pierre ou des carreaux.
OUVERTURES D’ALIMENTATION EN GAZ ET EN
ÉLECTRICITÉ
Des trous doivent être percés pour l’alimentation en gaz et en
électricité. Les trous doivent être situés de chaque côté de la
fournaise, comme illustré à la page10, figure10.
Percez un trou de 3,8cm (1½po) dans le mur ou le plancher
pour la conduite de gaz.
La conduite de gaz peut être posée à ce moment-là ou après
le montage de la fournaise, voir la section: Alimentation
en gaz et tuyauterie, page16. Marquez le plafond ou le
mur pour faire correspondre les ouvertures de la fournaise
murale et percez un trou de 2,5cm (1po) pour l’alimentation
électrique et un trou de 1,2cm (1⁄2po) pour le câble du
thermostat. Acheminez les câbles électriques et les fils de
mise à la terre jusqu’à l’ouverture. Laissez suffisamment de
longueur de câble pour le raccordement à la boîte de jonction
après l'installation de la fournaise. Voir la section «Câblage
électrique», page15.
MISE EN GARDE: Ne faites pas passer le fil dans un
endroit où il pourrait être endommagé. Évitez d’épisser
les fils du thermostat à moins que les fils épissés ne soient
correctement nettoyés, soudés et collés.
FIGURE10  OUVERTURES D’ALIMENTATION EN GAZ ET
EN ÉLECTRICITÉ
5 CM (2 PO)
ADMISSION DE GAZ DANS LA PARTIE INFÉRIEURE
ADMISSION
DE GAZ DANS
LA PARTIE
INFÉRIEURE
6,3 CM
(2-1/2 PO)
AVANT
CÔTÉ DOS
221 CM (87 PO) (1)
196,5 CM (77-3/8 PO) (2)
174 cm (68-1/2 po) (1)
150 cm (59 po) (2)
ÉVENT ET
ADMISSION D’AIR
TOP
5 CM (2 PO)
5 CM
(2 PO)
5 CM
(2 PO)
31 CM
(12-1/4 PO)
12,7 cm
(5 po)
9 cm
(3-1/2 po)
5 CM (2 PO)
36 cm
(14-1/8 po)
29,2 CM
(11-1/2 PO)
À
À
MODÈLES - DVCF60XD
MODÈLES - DVCF40XD

Table of Contents

Related product manuals