EasyManua.ls Logo

Crane Barnes SITHE 3XSCM - Thermal Protection and Moisture Detection; Control Panel and Electrical System Requirements

Crane Barnes SITHE 3XSCM
31 pages
Print Icon
To Next Page IconTo Next Page
To Next Page IconTo Next Page
To Previous Page IconTo Previous Page
To Previous Page IconTo Previous Page
Loading...
11
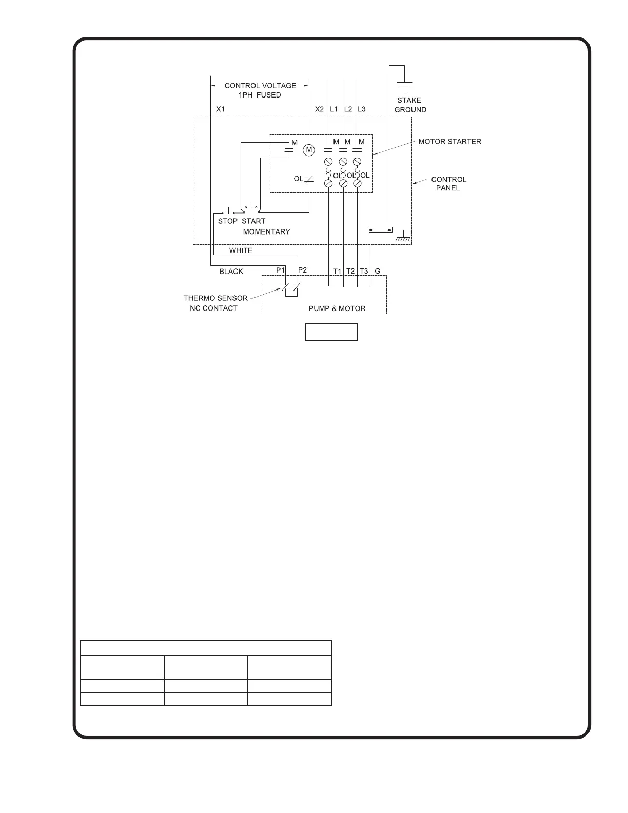
B-4.3) Overload Protection:
Current sensing overloads must be provided in the pump
control panel and should be properly sized for the full load
current of the pump. Three normally closed (N/C) thermal
sensors wired in series (one per phase) are embedded in
the motor windings and will detect excessive heat in the
event an overload condition occurs which will then trip and
stop the pump when wired in series with the pump contactor
control circuit. The thermal sensor leads marked P1 and
P2 MUST be connected in series with the stop button of
the pilot circuit of the magnetic motor controller located in
the control panel so that the thermostat will open the circuit
before dangerous temperatures are reached. A manual
momentary start switch is required to prevent the automatic
restarting of the motor when the thermostat resets. For a
typical wiring diagram, refer to Figure 4.
In the event of an over temperature condition, the source
of this condition should be determined and rectied before
the pump is put back into normal operation. DO NOT LET
THE PUMP CYCLE OR RUN IF AN OVER TEMPERATURE
CONDITION OCCURS!
If current through the temperature sensor exceeds the values
listed, an intermediate control circuit relay must be used to
reduce the current or the sensor will not work properly.
TEMPERATURE SENSOR ELECTRICAL RATINGS
Volts Continuous
Amperes
Inrush
Amperes
110-120 3.00 20.0
220-240 2.00 18.0
B-4.4) Moisture Sensors:
A normally open (N/O) detector is installed in the pump seal
chamber, which will detect any moisture present, and a
continuity test resistor built into the motor. The test resistor
is rated 1 watt at 330K ohms. The moisture sensors MUST
be connected to moisture detector control in the control
panel which includes a continuity test circuit, see Figure
4 for typical wiring diagram. The normally closed (N/C)
contact of the moisture detector MUST be connected in
series with the stop button of the pilot circuit of the magnetic
motor controller. Wiring must be provided from the moisture
detector sensor probe leads of the motor designated W1
and W2 to terminals 9 and 10 of the 2800-XXX control.
Terminal pair 1-2 must be continuously energized from an
A-C supply line of electrical characteristics shown on the
data table. In the event of moisture detection, the pump
should be pulled and the source of the failure located and
repaired. IF MOISTURE DETECTION HAS OCCURRED,
SCHEDULE MAINTENANCE AS SOON AS POSSIBLE !
B-4.5) Control Panel and Electrical System:
The control panel and the electrical system MUST be
properly designed and wired to include at least, but not
limited to the following;
a. Proper grounding per NEC.
b. A temperature sensing circuit (See Fig. 4)
c. A moisture detection circuit with continuity test
circuit (See Fig. 5)
d. A level control system.
e. A main power manual disconnect and lock out.
f. A motor starter and overload system.
g. Start Capacitor, Run Capacitor & Start Relay
(single phase only).
TYPICAL THERMAL PROTECTION WIRING DIAGRAM
FIGURE 4

Related product manuals