EasyManua.ls Logo

Crane Barnes SITHE 3XSCM - Page 10

Crane Barnes SITHE 3XSCM
31 pages
Print Icon
To Next Page IconTo Next Page
To Next Page IconTo Next Page
To Previous Page IconTo Previous Page
To Previous Page IconTo Previous Page
Loading...
10
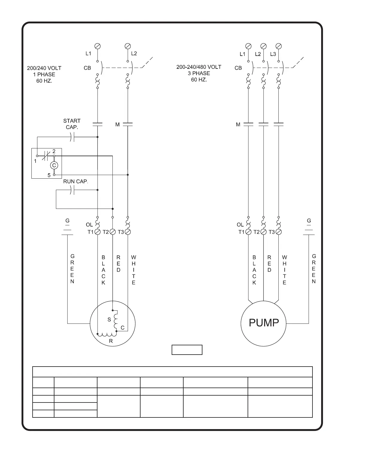
TYPICAL POWER CIRCUIT
Single Phase Cap Chart
HP RPM Cap Kit Start Relay Start Cap Run Cap
5 1750 133042 Mars 64 440MFD @ 330V 50MFD @370V
5 3450
141361 Mars 64 297MFD @ 330V 40MFD @440V3 1750
2 1750
Single Phase Start Components
FIGURE 3b

Related product manuals