EasyManua.ls Logo

Daikin MPS050F - Segment Installation & Replacement; Wheel Drive Motor & Pulley Replacement

Daikin MPS050F
132 pages
Print Icon
To Next Page IconTo Next Page
To Next Page IconTo Next Page
To Previous Page IconTo Previous Page
To Previous Page IconTo Previous Page
Loading...
Segment Installation &
Replacement
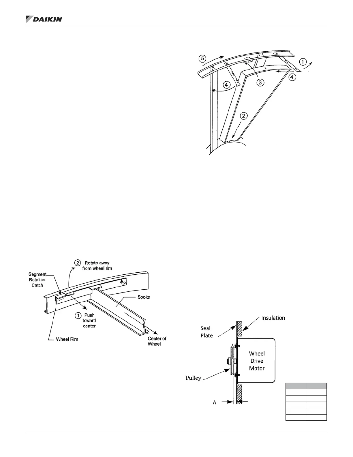
Wheel segments are secured to the wheel frame by a Segment
Retainer which pivots on the wheel rim and is held in place by
a Segment Retaining Catch (Figure 91).
To install wheel segments follow steps 1 through 5 (Figure 92).
Reverse the procedure for segment removal.
1. Disconnect power to the drive motor.
2. Unlock two segment retainers. There is one on each side
of the selected segment opening.
3. With the embedded stiffener facing he motor side, insert
the node of the segment between hub plates.
4. Holding the segment by the two outer corners, press the
segment towards the center of the wheel and inwards
against the spoke anges. If hand pressure does not
fully seat the segment, insert the at tip of a screwdriver
between the wheel rim and outer corners of the segment
and apply downward force while guiding the segment
into place.
5. Close and latch each Segment Retainer under the
Segment Retaining Catch.
6. Slowly rotate the wheel 180°. Install the second segment
opposite the rst for counter balance. Rotate the two
installed segments 90° to balance the wheel while the
third segment is installed. Rotate the wheel 180° again to
install the fourth segment opposite the third. Repeat this
sequence with the remaining four segments.
Figure 91: Segment Retaining Clip
Figure 92: Installing Wheel Segments
Wheel Drive Motor & Pulley
Replacement
1. Disconnect power to the drive motor.
2. Remove belt from the pulley and positions temporarily
around the wheel rim.
3. Loosen the set screw in wheel drive pulley using Allen
wrench and remove pulley from the motor drive shaft.
4. While supporting the weight of the drive motor in one
hand, loosen and remove (4) mounting bolts
5. Install the replacement motor with hardware kit supplied.
6. Install the pulley per the dimensions in Figure 93 and
secure the set screw to the drive shaft
7. Stretch belt over pulley and engage grove.
8. Follow start up procedure on page 96 (procedure
needs to be conrmed).
Figure 93: Pulley Installation
Series DIM–A
36 1/4"
52 1/4"
64 7/16"
74 7/16"
86 7/16"
maInTenanCe
www.DaikinApplied.com 109 IM 1058-8 • MAVERICK II ROOFTOP SYSTEMS

Table of Contents

Related product manuals