EasyManua.ls Logo

Daikin MPS050F - VAV Control - Inputs

Daikin MPS050F
132 pages
Print Icon
To Next Page IconTo Next Page
To Next Page IconTo Next Page
To Previous Page IconTo Previous Page
To Previous Page IconTo Previous Page
Loading...
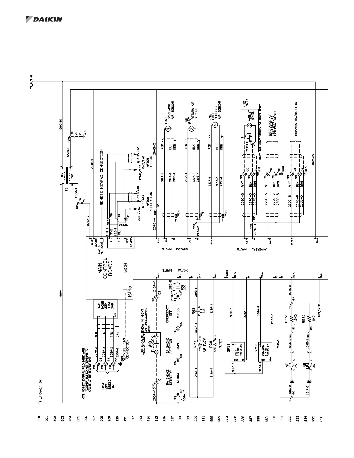
Figure 64: VAV Control – Inputs
IM 1058-8 • MAVERICK II ROOFTOP SYSTEMS 70 www.DaikinApplied.com
WIrInG dIaGrams

Table of Contents

Related product manuals