EasyManua.ls Logo

Daikin Super multi NX E Series - Indoor Unit

Daikin Super multi NX E Series
302 pages
Print Icon
To Next Page IconTo Next Page
To Next Page IconTo Next Page
To Previous Page IconTo Previous Page
To Previous Page IconTo Previous Page
Loading...
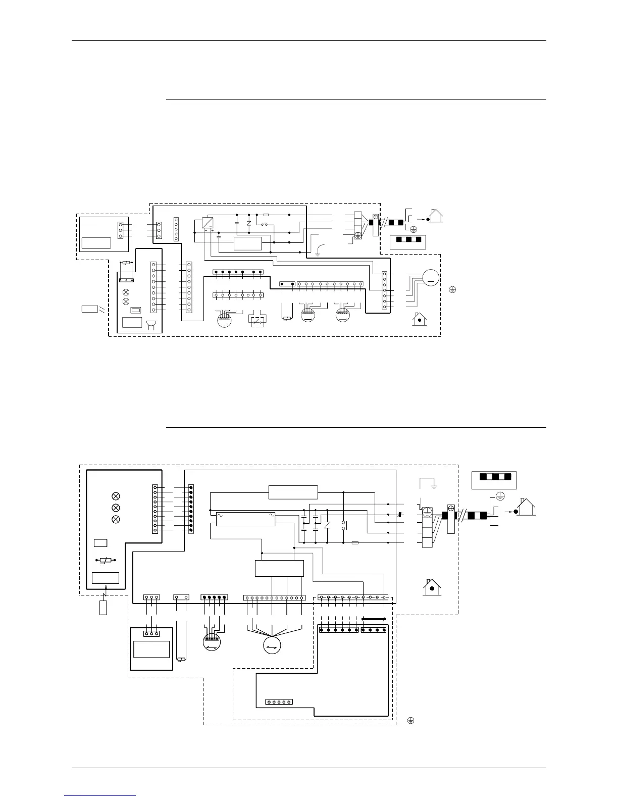
Wiring Diagrams SiBE121135_A
281 Appendix
2.2 Indoor Unit
2.2.1 Wall Mounted Type
FTXG25/35/50JV1BW(A)
FTXS20/25K2V1B, CTXS15/35K2V1B
X1M
1
A1P
F1U
H1
S21
2
BLK
1
S25
3.15A
~
3
2
WHT
A3P
C102 V1
1
1
BLK
H2
OUTDOOR
RED
3
MR10
S36
HA
BLK
GRN
/
BLK
3
3
YLW
C101
H3
GRN
FIELD WIRING.
/
YLW
FG
A2P
S51
S46
S200
BLK
11
71S42
R1T
BLK
7
S41S32
RED
S52
BLK
M
12 3 1028597416
BLK
1
3
4
BLK
BLK
BLK
BLK
BLK
BLK
BLK
BLK
3
1
8
BLU
M1F
H1P
BLK
BRN
BLK
CAUTION
BLU
BLU
ORG
PNK
PNK
BLK
BLK
RED
RED
H2P
YLW
YLW
ORG
ORG
BLK
1
WHT
BLK
BLK
BLK
BLK
BLK
BLK
BLK
BLK
S1W
99
MSW
MSW
BZ
M
R2T
INDOOR
S1C
M1
WIRELESS
REMOTE
CONTROLLER
INTELLIGENT EYE
SENSOR
SIGNAL
RECEIVER
TRANSMISSION
CIRCUIT
M1S
(MAIN)
M2S
(SUB)
FG
F1U
H1P, H2P
M1F
M1S, M2S
M1
A1P~A3P
R1T, R2T
S25~S200
S1W
S1C
X1M
BZ
: FRAME GROUND
: FUSE
: PILOT LAMP
: FAN MOTOR
: SWING MOTOR
: STEPPING MOTOR
: PRINTED CIRCUIT BOARD
: THERMISTOR
: CONNECTOR
: OPERATION SWITCH
: LIMIT SWITCH
: TERMINAL STRIP
: BUZZER
: PROTECTIVE EARTH
NOTE THAT OPERATION WILL
RESTART AUTOMATICALLY IF
THE MAIN POWER SUPPLY IS
TURNED OFF AND THEN BACK
ON AGAIN.
3D065507D
PCB 2
PCB 1
S26S27S27S27
FIELD WIRING.
BLK
11110
BLK
GRN/YLW
BLK
H1PLED1 H1PLED1 H1PLED1
FG2
BLK
BLK
3
H2PLED2 H2PLED2 H2PLED2
FG1
BLK
2
BLK
RECTIFIER
H3
BLK
H3PLED3 H3PLED3 H3PLED3
+
33
OUTDOOR
BLK
1
MR10
V1
H2
1
BLK
101010
22
H1
S1W
11
t°
X1M
+
R1T
IPM200
11 1132 5 10
S403
16912
S25 S32 S200S6
INDOOR
BLK
BLK
BLK
BLK
BLK
BLK
BLK
BLK
BLK
BLK
BLK
BLK
BLK
BLK
BLK
BLK
BLK
BLK
BLK
BLK
BLK
BLK
BLK
BLK
BLK
BLK
BLK
BLK
BLK
BLK
BLK
BLK
BLK
BLK
BLK
YLWYLW
BLK
BLK
BLK
BLK
BLK
BLK
BLK
BLK
BLK
BLK
BLK
WHTWHTWHT
BLU
RED
BLU
RED
BLKBLKBLK
ORGORG
S36S36S36
4141414116161616
S601S601S601S601
S602S602S602S602
M
M
t°
M1SM1S
M1F
PCB 3
R2TR2T
NOTE)
S21S21S21S21
PCB 4
OPTIONOPTION
Z1C
N=3
GRN
GRN
RED
WHT
BLK
Z2C
N=2
: FRAME GROUND
: FUSE
: HARNESS
: PILOT LAMP
: FAN MOTOR
: SWING MOTOR
: PRINTED CIRCUIT BOARD
: THERMISTOR
: CONNECTOR
: OPERATION SWITCH
: FERRITE CORE
: TERMINAL STRIP
: PROTECTIVE EARTH
FG1, FG2
F1U
H1~H3
H1P~H3P
M1F
M1S
PCB1~PCB4
R1T, R2T
S6~S602
S1W
Z1C, Z2C
X1M
CAUTION
NOTE THAT OPERATION WILL
RESTART AUTOMATICALLY IF
THE MAIN POWER SUPPLY IS
TURNED OFF AND THEN BACK
ON AGAIN.
TRANSMISSION
CIRCUIT
WIRELESS
REMOTE
CONTROLLER
F1U
3.15A
INTELLIGENT EYE
SENSOR
SIGNAL
RECEIVER
1. PCB4 SHOWS THE CASE OF
OPTIONAL CONNECTION.
3D073474C

Table of Contents

Related product manuals