EasyManua.ls Logo

Daikin VAM-FA - Page 47

Daikin VAM-FA
85 pages
Print Icon
To Next Page IconTo Next Page
To Next Page IconTo Next Page
To Previous Page IconTo Previous Page
To Previous Page IconTo Previous Page
Loading...
3
1
13
Ventilation • Heat reclaim ventilation
45
Heat reclaim ventilation • VAM-FA/FB
13 Installation
13 - 1 Installation Method
'
9$0)%
6XVSHQVLRQEROW
SRVLWLRQ
0DLQWHQDQFHVSDFH
2$
)UHVKDLUIURPRXWGRRUVRXWGRRUDLU
5RXQGVKDSHKRRG
)LHOGVXSSO\
6XVSHQVLRQEROW
)LHOGVXSSO\
0HWDOVXVSHQVLRQEUDFNHW
IRUDEVRUELQJYLEUDWLRQV
IHOGVXSSO\
,QVSHFWLRQKROH
)LHOGVXSSO\
)LHOGVXSSO\
+HDWLQVXODWRU
6$ 6XSSO\DLUWRURRP
5$5HWXUQDLUIURPURRP
$JUDGLHQWRIPRUH
WKDQRQHLQIIW\
($
([KDXVWDLUWRRXWGRRUV
,QVSHFWLRQKROH
6XVSHQVLRQEROW
SRVLWLRQ
$LUGLVFKDUJHJULOOH
$LUVXFWLRQJULOO
5$
5HWXUQDLUIURPURRP
2$
)UHVKDLUIURPRXWGRRUVRXWGRRUDLU
($
([KDXVWDLUWRRXWGRRUV
¡1RPLQDOGLDPHWHU
)LHOGVXSSO\
9$0)%
6$
6XSSO\DLUWRURRP
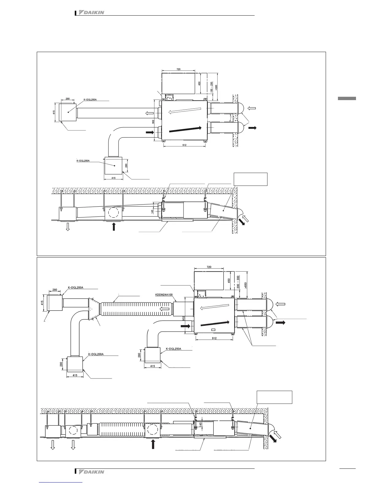
Suspension bolt
position
Maintenance space
Silencer
Flexible duct
Branch duct
OA
(Fresh air from outdoors/
outdoor air)
Round shape hood
(Field supply)
Suspension bolt
(Field supply)
Metal suspension bracket for
absorbing vibrations (fi eld
supply)
Inspection hole
(Field supply)
(Field supply)
Heat insulator
SA (Supply air to room)
RA
(Return air from room)
A gradient of more
than one in fi fty
EA
(Exhaust air to outdoors)
Inspection hole
Suspension bolt
position
Suspension bolt
position
Air discharge grille
Air suction grill
Air discharge grill
RA
(Return air from room)
OA
(Fresh air from
outdoors/outdoor air)
EA
(Exhaust air to outdoors)
ø200 Nominal diameter
(Field supply)
VAM800FB
VAM800FB
3D081270
SA (Supply air to room)

Related product manuals