EasyManua.ls Logo

Daikin VAM-FA - Page 48

Daikin VAM-FA
85 pages
Print Icon
To Next Page IconTo Next Page
To Next Page IconTo Next Page
To Previous Page IconTo Previous Page
To Previous Page IconTo Previous Page
Loading...
Heat reclaim ventilation • VAM-FA/FB
1
13
Ventilation • Heat reclaim ventilation
46
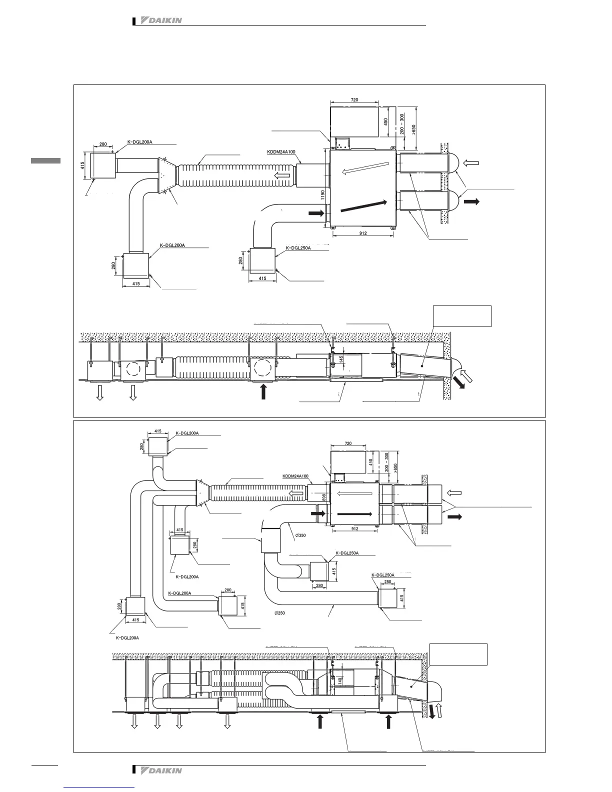
13 Installation
13 - 1 Installation Method
Suspension bolt
position
Maintenance space
Silencer
Flexible duct
Branch duct
OA
(Fresh air from outdoors/
outdoor air)
Round shape hood
(Field supply)
Suspension bolt
(Field supply)
Metal suspension bracket for
absorbing vibrations (fi eld
supply)
Inspection hole
(Field supply)
(Field supply)
Heat insulator
SA (Supply air to room)
RA
(Return air from room)
A gradient of more
than one in fi fty
EA
(Exhaust air to outdoors)
Inspection hole
Suspension bolt
position
Suspension bolt
position
Air discharge grille
Air suction grill
Air discharge grill
RA
(Return air from room)
OA
(Fresh air from outdoors/
outdoor air)
EA
(Exhaust air to outdoors)
ø200 Nominal diameter
(Field supply)
VAM1000FB
VAM1000FB
3D081271
SA (Supply air to room)
Suspension bolt position
Suspension bolt
position
Maintenance space
Silencer
Flexible duct
Branch duct
Branch duct
OA
(Fresh air from outdoors/
outdoor air)
Round shape hood
(Field supply)
Suspension bolt
(Field supply)
Metal suspension bracket for
absorbing vibrations (fi eld supply)
(Field supply)
(Field supply)
(Field supply)
(Field supply)
Heat insulator
SA (Supply air to room)
RA
(Return air from room)
A gradient of more
than one in fi fty
EA
(Exhaust air to outdoors)
Inspection
hole
Suspension bolt
position
Suspension bolt
position
Suspension bolt
position
Suspension bolt
position
SA (Supply air to room)SA (Supply air to room)
Air discharge grille
Air suction grill
Air suction grill
Nominal diameter
Nominal diameter
Air discharge grill
Air discharge grill
Air discharge grill
RA (Return air from room)
RA (Return air from room)
OA
(Fresh air from outdoors/
outdoor air)
EA
(Exhaust air to outdoors)
ø350 Nominal diameter
(Field supply)
VAM1500FB
VAM1500FB
3D081272
Inspection hole
(Field supply)

Related product manuals