EasyManua.ls Logo

Daikin VRV III - Wiring Diagrams

Daikin VRV III
455 pages
Print Icon
To Next Page IconTo Next Page
To Next Page IconTo Next Page
To Previous Page IconTo Previous Page
To Previous Page IconTo Previous Page
Loading...
ED34-862 Wiring Diagrams
FXFQ-P 55
2
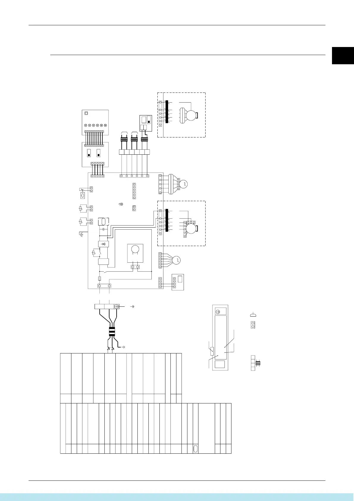
5. Wiring Diagrams
FXFQ25P / 32P / 40P / 50P / 63P / 80P / 100P / 125PVE
NOTES)
1. : TERMINAL , : CONNECTOR
: FIELD WIRING
2. IN CASE USING CENTRAL REMOTE CONTROLLER, CONNECT IT TO
THE UNIT IN ACCORDANCE WITH THE ATTACHED INSTALLATION
MANUAL.
3. X24A, X33A AND X35A ARE CONNECTED WHEN THE OPTIONAL
ACCESSORIES ARE BEING USED.
4. WHEN CONNECTING THE INPUT WIRES FROM OUTSIDE, FORCED OFF OR
ON/OFF CONTROL OPERATION CAN BE SELECTED BY THE REMOTE
CONTROLLER. SEE INSTALLATION MANUAL FOR MORE DETAILS.
5. CONFIRM THE METHOD OF SETTING THE SELECTOR SWITCH (SS1, SS2) BY
INSTALLATION MANUAL AND ENGINEERING DATA, ETC.
6. SYMBOLS SHOWS AS FOLLOWS:
RED : RED BLK : BLACK WHT : WHITE YLW : YELLOW GRN : GREEN
ORG : ORANGE BRN : BROWN PNK : PINK GRY : GRAY BLU : BLUE
LIGHT EMITTING DIODE
(SERVICE MONITOR GREEN)
LIGHT EMITTING DIODE
(DEFROST-ORANGE)
FUSE (F, 5A, 250V)
CONNECTOR
(ADAPTOR FOR WIRING)
SELECTOR SWITCH (MAIN/SUB)
PRINTED CIRCUIT BOARD
SELECTOR SWITCH
(WIRELESS ADDRESS SET)
CONNECTOR (GROUP
CONTROL ADAPTOR)
RECEIVER/DISPLAY UNIT
(ATTACHED TO WIRELESS
REMOTE CONTROLLER)
LIGHT EMITTING DIODE
(ON-RED)
CAPACITOR
WIRED REMOTE CONTROLLER
H4P
R1T
X33A
H2P
SS2
SS1
X24A
H1P
H3P
SS1
X35A
SELECTOR SWITCH
(MAIN/SUB)
CONNECTOR FOR OPTIONAL PARTS
LIGHT EMITTING DIODE
(TIMER-GREEN)
INDOOR UNIT
PRINTED CIRCUIT BOARD
NOISE FILTER
POWER SUPPLY CIRCUIT
PUSH BUTTON (ON/OFF)
TERMINAL STRIP
PRINTED CIRCUIT BOARD
ELECTRONIC
EXPANSION VALVE
THERMISTOR (AIR)
MOTOR (DRAIN PUMP)
MAGNETIC RELAY
TERMINAL STRIP
FLOAT SWITCH
MOTOR (INDOOR FAN)
MAGNETIC RELAY (M1P)
DIODE BRIDGE
THERMISTOR (COIL LIQUID)
MOTOR (SWING FLAP)
THERMISTOR PTC
THERMISTOR (COIL GAS)
FERRITE CORE
THERMISTOR (AIR)
CONNECTOR (WIRELESS
REMOTE CONTROLLER)
LIGHT EMITTING DIODE
(FILTER SIGN-RED)
HAP
M1S
R1T
R2T
R3T
R4T
A4P
A3P
BS1
Z1F
M1P
Z1C
PS
X2M
KPR
S1L
V1R
C1
F1U
A1P
A2P
X1M
Y1E
K1R
M1F
PRINTED CIRCUIT BOARD
KPR
+
C1
PS
X2M
X33A
NOTE) 3
A1P
+
GRN/YLW
X30A
N
X24A
WHT
X35A
NOTE) 3
HAP
-
X27A
NOTE) 3
X36A
RED
S1L
X15A
L
RECEIVER/DISPLAY UNIT
X20A
Z1C
25~80-CLASS
N=1
R4T
K1R
X16A
CN1
R1T
A2P
X20A
100, 125-CLASS
N=1
Z1C
X7A
Y1E
M
Z1F
GRN
X33AX35A
CONTROL BOX
X2M
X1M
A1P
A2PX24A
V1R
TRANSMISSION WIRING
CENTRAL REMOTE CONTROLLER
X25A
M
~
YLW
YLW
M1P
X18A
R2T
R3T
X17A
MSW
M1S
F1U
BLK
WHT
YLW
ORG
PNK
BLU
WIRED REMOTE
CONTROLLER
NOTE) 4
INPUT FROM
OUTSIDE
F1
P1
F2
T1
P2
T2
X1M
NOTE) 2
BRN
MS
3~
M1F
RED
WHT
ORG
BLU
RED
BLU
WHT
M1F
MS
3~
BRN
ORG
WHT
A4PA3P
X2A
X1A
SS2
SS1
BS1
H5P
H1P
H3P
H4P
H6P
H2P
X1A
SS1
P2
P1
R1T
POWER SUPPLY
~220-240V ~220V
50Hz 60Hz
3D059890
Все каталоги и инструкции здесь: http://splitoff.ru/tehn-doc.html

Table of Contents

Other manuals for Daikin VRV III

Related product manuals