EasyManua.ls Logo

Daikin VRV III - Installation

Daikin VRV III
455 pages
Print Icon
To Next Page IconTo Next Page
To Next Page IconTo Next Page
To Previous Page IconTo Previous Page
To Previous Page IconTo Previous Page
Loading...
Installation ED34-862
136 FXCQ-M
9. Installation
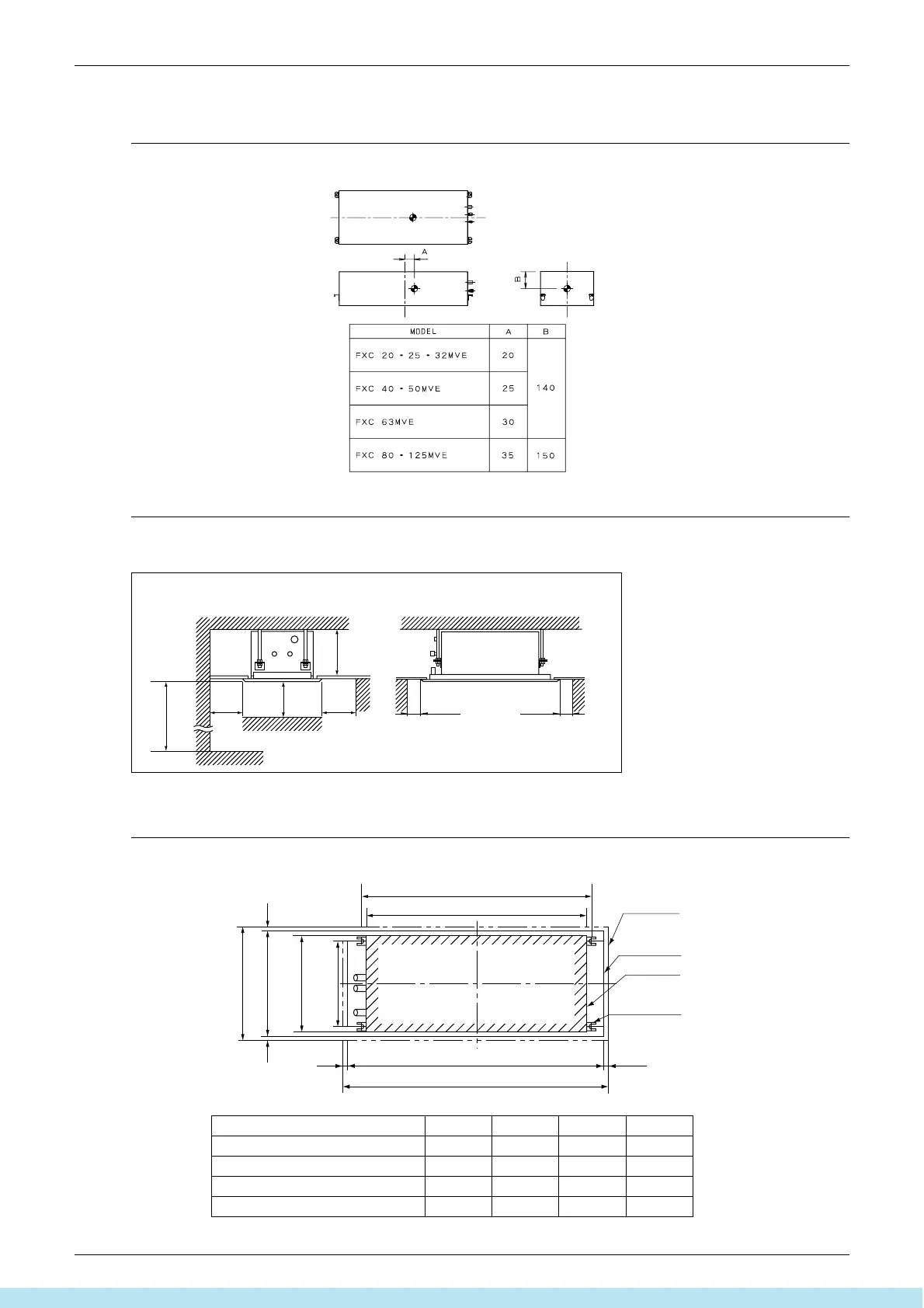
Center of Gravity
Service Space
Note:
Above figure means minimum value. Please keep these value at least.
Bolt Pitch
Unit (mm)
Unit (mm)
C : 4D034788B
Q
Q
Q
Q
350
15001500
1000
[ Space required for installation ]
100 100
2500 or more
For installation
in high places
3PR01906-7R
Model A B C D
FXCQ20 · 25 · 32MVE 990 820 775 1030
FXCQ40 · 50MVE 1205 1035 990 1245
FXCQ63MVE 1390 1220 1175 1430
FXCQ80 · 125MVE 1880 1710 1665 1920
3PR01906-7R
Decoration
panel
Ceiling
opening
Indoor unit
Suspension
bolt (× 4)
D (Panel outside dimensions)
A (Ceiling opening)
B (Suspension pitch)
C (Unit outside dimensions)
2020
2020
680 (Panel outside dimensions)
640 (Ceiling opening)
600 (Unit outside
dimensions)
520
(Suspension pitch)
(Unit : mm)
Все каталоги и инструкции здесь: http://splitoff.ru/tehn-doc.html

Table of Contents

Other manuals for Daikin VRV III

Related product manuals