EasyManua.ls Logo

Daikin VRV III - Dimensions; Fxdq-Pb

Daikin VRV III
455 pages
To Next Page IconTo Next Page
To Next Page IconTo Next Page
To Previous Page IconTo Previous Page
To Previous Page IconTo Previous Page
Loading...
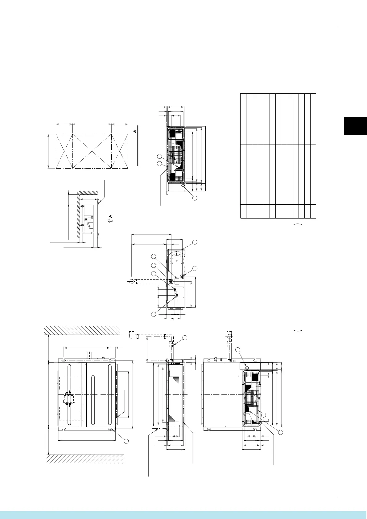
ED34-862 Dimensions
FXDQ-PB / FXDQ-NB 167
5
3. Dimensions
3.1 FXDQ-PB
FXDQ20 / 25 / 32PBVE (with Drain Pump)
ARROW VIEW
<<SERVICE SPACE>>
(ALL AROUND)
(ALL AROUND)
16-φ4.7HOLE
(SERVICE SPACE)
(SUSPENSION BOLT PITCH)
(ALL AROUND)
(ALL AROUND)
(SUSPENSION BOLT PITCH)
INSPECTION DOOR
(CEILING OPENING)
4-M8 ~ M10
<<IN CASE OF BOTTOM-SUCTION>>
47
100
9
200
10
660
12
580
620
620
ADJUSTABLE(0~600)
300
280
620
180
63
12
300
170
300 OR MORE
100
170
400 OR MORE
50
90
80
11
100
SUSPENSION BOLT
20 OR MORE
620
16-M5 HOLES
50
4 × P150 = 600
7
680
100
90
140
80
20
300 OR MORE
740
57.5
11
600
50
30
500
160
300 OR LESS
330
4
5 × P100 = 500
100
80
90
140
153
200
8
23
2
5 × P100 = 500
10
3
5 × P100 = 500
12.5
21
16-M5 HOLES
5
700
700
130
60
550
10
14-M4 HOLES
580
600
CEILING
33
160
6
20 OR MORE
180
1
20
(SERVICE SPACE
OF INSTALLATION
BOX FOR ADAPTOR
PCB)
(IN CASE OF
BOTTOM SUCTION)
240 OR MORE
<<IN CASE OF BACK-SUCTION>>
3
NAME
CONTROL BOX
NUMBER
VP20 (O. D. φ 26/I. D. φ 20)
2 GAS PIPE CONNECTION
7
POWER SUPPLY CONNECTION
TRANSMISSION WIRING CONNECTION
I. D. φ 25 (OUTLET)
DESCRIPTION
DRAIN PIPE CONNECTION
SUSPENSION BRACKET8
4
5
DRAIN HOSE (ACCESSORY)
φ 6.4 (FLARE CONNECTION)
φ 12.7 (FLARE CONNECTION)
1
9
6
LIQUID PIPE CONNECTION
NOTE) 1. IN CASE OF BACK-SUCTION,
MOUNT CHAMBER COVER TO BOTTOM SIDE OF
THE UNIT.
IN CASE OF BOTTOM-SUCTION,
MOUNT CHAMBER COVER TO BACK SIDE OF THE
UNIT.
2. LOCATION OF UNIT'S NAME PLATE: CONTROL
BOX COVER
3. MOUNT THE AIR FILTER AT THE SUCTION SIDE.
SELECT ITS COLORIMETHOD (GRAVITY METHOD)
50% OR MORE.
IT CAN NOT BE EQUIPPED WITH AIR FILTER
(ACCESSORY) WHEN CONNECTING DUCT TO
SUCTION SIDE.
11
12
10
PROTECTION NET
AIR FILTER (ACCESSORY)
INSPECTION DOOR
SOCKET FOR DRAIN
3D049799B
Unit (mm)
Все каталоги и инструкции здесь: http://splitoff.ru/tehn-doc.html

Table of Contents

Other manuals for Daikin VRV III

Related product manuals