EasyManua.ls Logo

Danfoss 087H3803 - Page 7

Danfoss 087H3803
20 pages
To Next Page IconTo Next Page
To Next Page IconTo Next Page
To Previous Page IconTo Previous Page
To Previous Page IconTo Previous Page
Loading...
7
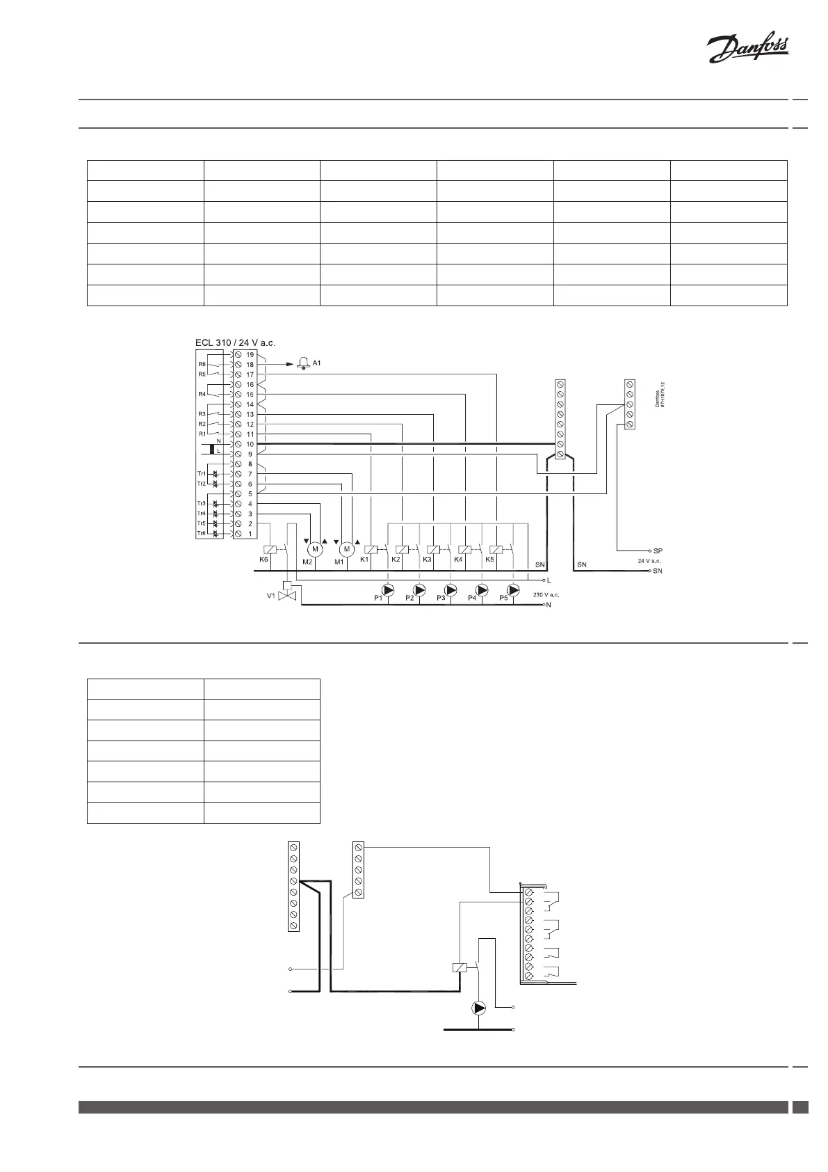
24 V a.c., A368 (ECL 310)
P1 P2 P3 P4 P5
A368.1
ü ü ü ü ü
A368.2
ü ü ü ü ü
A368.3
ü ü ü ü ü
A368.4
ü ü ü ü ü
A368.5
ü ü ü ü ü
A368.6
ü ü ü ü
24 V a.c., A368 (ECA 32)
P7
A368.1
A368.2
A368.3
ü
A368.4
ü
A368.5
ü
A368.6
87H2010.11
Danfoss
39
40
41
42
43
44
45
46
47
48
R7
R8
R9
R10
24 V a.c.
SP
SN
SN
K7
P7
L
N
230 V a.c.
ECA 32
Mounting Guide ECL Comfort 310, A368
Danfoss District Energy VI.LG.K2.00 DEN-SMT/DK

Other manuals for Danfoss 087H3803

Related product manuals