EasyManua.ls Logo

Danfysik SYSTEM 9100 - Analog X108 Interface (D-SUB 25); SPI-Iset DAC Interface X5 (HDMI 19)

Danfysik SYSTEM 9100
63 pages
Print Icon
To Next Page IconTo Next Page
To Next Page IconTo Next Page
To Previous Page IconTo Previous Page
To Previous Page IconTo Previous Page
Loading...
MAGNET POWER SUPPLY SYSTEM 9100
21
DANFYSIK A/S - DENMARK.
Scroll
menu
Sub
me
nu
1
Sub menu 2
Sub menu 3
Comment
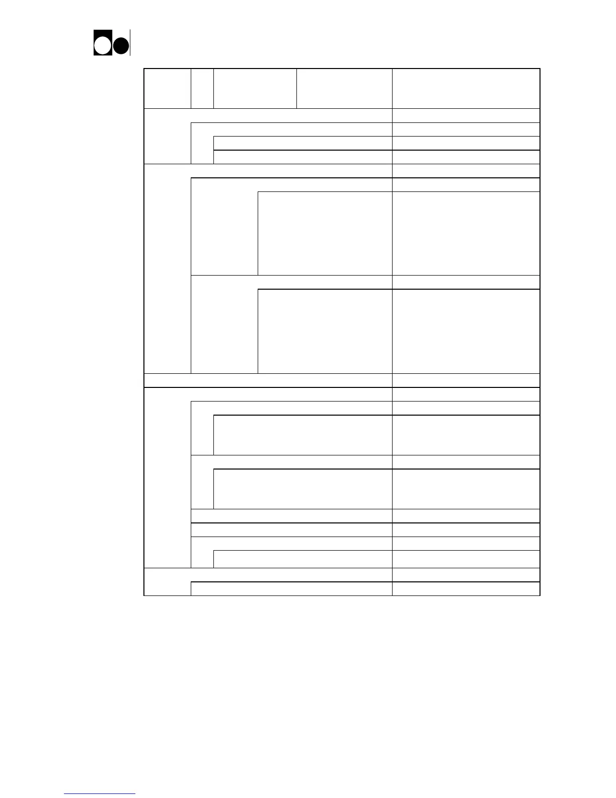
LIMITS
Value limitations
I
SE
T
Current value limitations
POS
Positive limit
NEG
Negative limit
AD-CHAN
CHN 0-8
A/D Channels 0 to 8
Output current
Field Input
Vout
Internal +15V
Internal -15V
Internal +5V
Delta Temperature
I Set Value
Optional Iout 16 bit resolution
Output current 3 significant digits
Hall-probe required.
Output Voltage 0 - 120%
Internal control voltage
Internal control voltage
Internal control voltage
Delta temperature inside regulated area
Output setting current
Output current 5 significant digits
CHN 9-17
A/D Channels 9 to 18
Iout
Not Used
Output current for display
Output voltage for display
Not Used
Not Used Not
Used Not
Used Iset
value
Output current for bar graph
Output current for display, in ampere
Output voltage for display, in voltage
Output setting current
DA-CHAN
Setting of D/A Channels
SETUP
Sets working conditions
BA
UD
Operator Control Panel Baud rate setting
1200,
2400,
9600,
19200,
38400
57600
76800
115200
Communication may be lost when changing
the baud rate.
CO
LO
UR
LED Color
Interlock
PSU ready
Power ON
Power OFF
Set to RED, GREEN or
“YELLOW
SOUND
Buzzer ON or OFF
DEFAULT
Set to factory default
OP
TIO
N
ADR
Multidrop Address enable
HISTORY
OPEN LOG
Se chapter for further information.

Table of Contents

Related product manuals