EasyManua.ls Logo

Datalogic DX8200 - Mechanical Installation; Input;Output Connections; External Device

Datalogic DX8200
15 pages
Print Icon
To Next Page IconTo Next Page
To Next Page IconTo Next Page
To Previous Page IconTo Previous Page
To Previous Page IconTo Previous Page
Loading...
DX8200 CONTROLLER
QUICK GUIDE
8
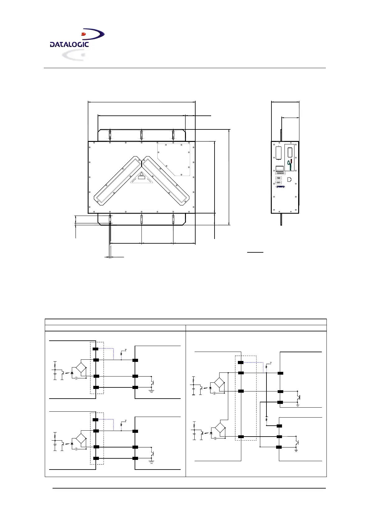
Mechanical Installation:
There are two mounting rails on the sides of the scanner for installation.
5.9
150
3.7
94
22.7
576
18.5
470
2.1
53
385
15.16
20.2
513
40
1.6
10
0.4
170
6.7
9
0.4
170
6.7
118
4.6
64
2.5
mm
inch
POWER ON
EXT TRIG
ENCODER
GOOD READ
TX DATA
NETWORK
Input/Output Connections:
The electrical features of the inputs are:
Maximum voltage 30 V
Maximum current 10 mA
Input NPN
Polarity Insensitive Common Reference
EXTERNAL TRIGGER/
ENCODER
VS
A
Vext
B
GND
V
+ 5V
~
~
+
-
Ground
9
DX8200 Controller
EXTERNAL TRIGGER/
ENCODER
VS
B
Vext
A
GND
V
+ 5V
~
~
+
-
Ground
9
DX8200 Controller
EXTERNAL DEVICE
DX8200 Controller
IN3A
V
ext
GND
V
+ 5V
~
~
+
-
EXTERNAL DEVICE
Vext
GND
V
IN4A
+ 5V
~
~
+
-
VS
INREF
9

Related product manuals