EasyManua.ls Logo

Delta Electronics VFD-M Series - Page 148

Delta Electronics VFD-M Series
173 pages
Print Icon
To Next Page IconTo Next Page
To Next Page IconTo Next Page
To Previous Page IconTo Previous Page
To Previous Page IconTo Previous Page
Loading...
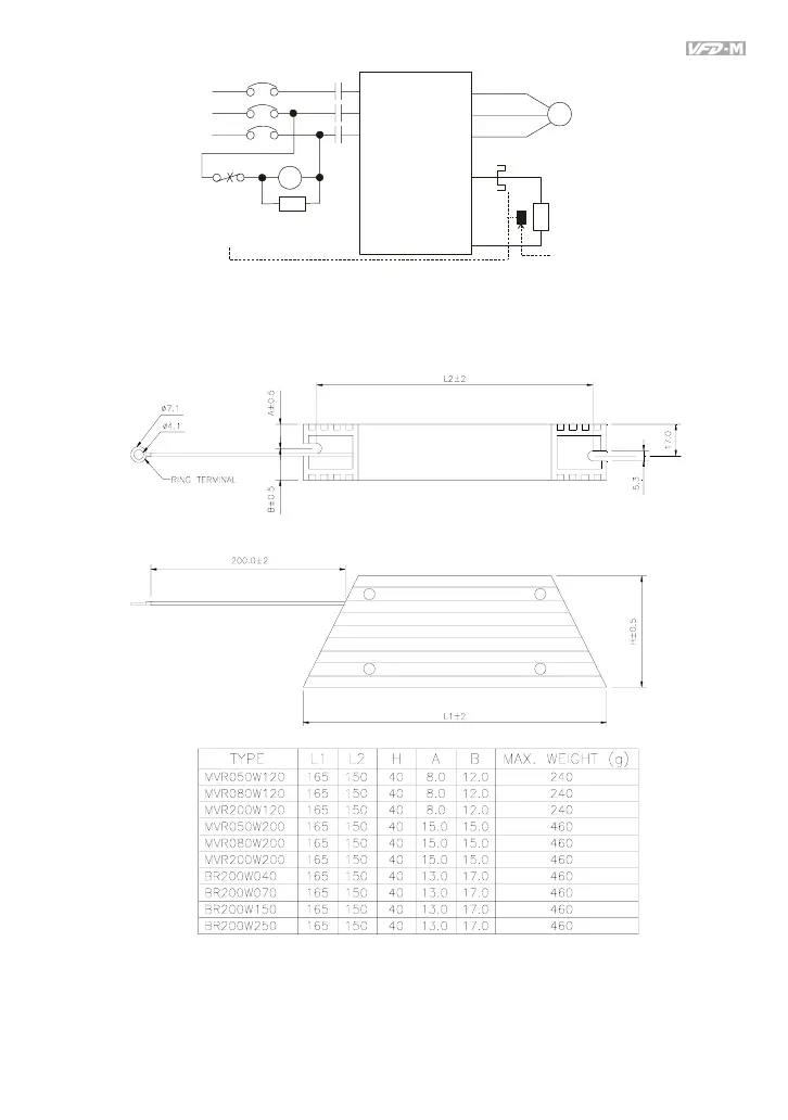
Appendix B Accessories|
Revision May 2008, ME14, SW V3.04 B-3
R/L1
S/L2
T/L3
NFB
MC
VFD Series
MOTOR
O.L.
U/T1
V/T2
W/T3
SA
R/L1
S/L2
T/L3
MC
IM
Thermal
Overload
Relay or
temperature
switch
Surge
Absorber
B1
B2
BR
O.L.
Thermal Overload
Relay
Brake
Resistor
Tem per at u re
Switch
B.1.1 Dimensions and Weights for Brake Resistors& Brake Units
(Dimensions are in millimeter)

Related product manuals